立即预约 立即预约
免费定制整装家居

免费定制整装家居

一站置家 全程无忧 一省到底
hide.png

当前位置: 首页 > 装修案例效果图 > 中航城

中航城 150平 现代简约风格效果图

收藏
案例风格 现代简约 案例户型 三居 案例面积 150平米
楼盘名称 中航城 设计师 林凤装饰设计师 案例类型 改善性住宅

设计理念:本案以现代风格为主,现代设计追求的是空间的适应性和灵活性,居室空间是根据相互间的功能关系组合而成的,而且功能空间相互渗透,空间的利用率达到最高。

客厅
第1张
第2张
第3张
第4张
餐厅
第1张
第2张
卧室
第1张
卫生间
第1张
厨房
第1张
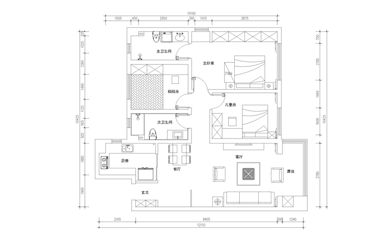
户型图
第1张
  • 案例详情

中航两河流域-150平-现代风格-客厅2.jpg 中航两河流域-150平-现代风格-客厅4.jpg 中航两河流域-150平-现代风格-客厅1.jpg 中航两河流域-150平-现代风格-客厅3.jpg

客厅的主色调为浅黄色,地面采用浅灰色的地板铺设,主题墙面采用白色的乳胶漆涂饰,一面墙采用米黄色乳胶漆。给人一种很柔软舒适的空间,灰色给人平稳安静的感觉,让你感觉不到特别跳跃的空间。一把橘黄色的椅子又让整个空间活跃了起来,给这淡定的环境一丝朝气。

中航两河流域-150平-现代风格-餐厅2.jpg 中航两河流域-150平-现代风格-餐厅1.jpg

餐厅是家居生活中重要的一部分。颜色不一的餐椅给人以不一样的感觉,白色的餐椅让空间更加明亮,而天蓝色的椅子丰富了空间的视觉感官。在餐桌的墙面上摆放一幅挂画,增加空间的饱满,原木色的餐桌让人更加接近自然,让环境充满生机与活力。

中航两河流域-150平-现代风格-卧室..jpg

卧室是组成家居生活中重要的一环,更是整个居室中最个人化的空间。原木色的地板,通透的大窗户,黄色的墙面是极好的搭配。白色的衣柜.欧式的梳妆台.床榻边的婴儿床.展现的不只是空间的饱满,更是生活中不可或缺的柴米油盐的烟火气息。

中航两河流域-150平-现代风格-卫生间.jpg

时尚,优雅,卫生,整洁是卫浴装饰主旋律,浅灰色的瓷砖给人以强烈的视觉冲击而原木色的手盆又让满是石材的冰冷空间多了一丝温馨。几扇玻璃门不但起到了干湿分离的作用,还让整个空间开起来更加宽敞,通透。

中航两河流域-150平-现代风格-厨房.jpg

厨房色彩偏冷,使用最简略的线条,最简略的颜色,包裹起现代厨房的功能,使厨房的使用更加舒适。白色的橱柜让空间处处透漏出硬朗的感觉,严肃而亲近,再搭配上暖色墙砖,暖色和冷色的相互配合,共同演奏了和谐的乐章,色香味俱全的饭菜在这样的环境中别有一番风味。

中航两河流域-150平-现代风格-平面图.jpg

案例设计师

林凤装饰设计师

设计师:林凤装饰设计师

从业时间:14年

设计理念:用有限空间,做无限设计,成就梦想之家。

预约设计师

算算你家装修多少钱

报名即享丰厚赠品,品质装修

免费报价
咨询热线:400-656-9909
20190221103704574636.jpg

精品设计案例

20180612134930523248.jpg 服务号二维码.jpg