立即预约 立即预约
免费定制整装家居

免费定制整装家居

一站置家 全程无忧 一省到底
hide.png

当前位置: 首页 > 装修案例效果图 > 鑫丰雍景豪城二期

鑫丰雍景豪城二期 130平 现代简约风格效果图

收藏
案例风格 现代简约 案例户型 三居 案例面积 130平米
楼盘名称 鑫丰雍景豪城二期 设计师 林凤装饰设计师 案例类型 改善性住宅

设计理念:本案是现代风格,现代风格无论在造型上还是装饰上都推崇简约,讲求以少胜多,其装饰风格是内敛的,含蓄的,低调的,家的感觉就在这样一片充满自然元素的空间中恣意的流淌。

客厅
第1张
第2张
第3张
餐厅
第1张
第2张
第3张
卧室
第1张
卫生间
第1张
厨房
第1张
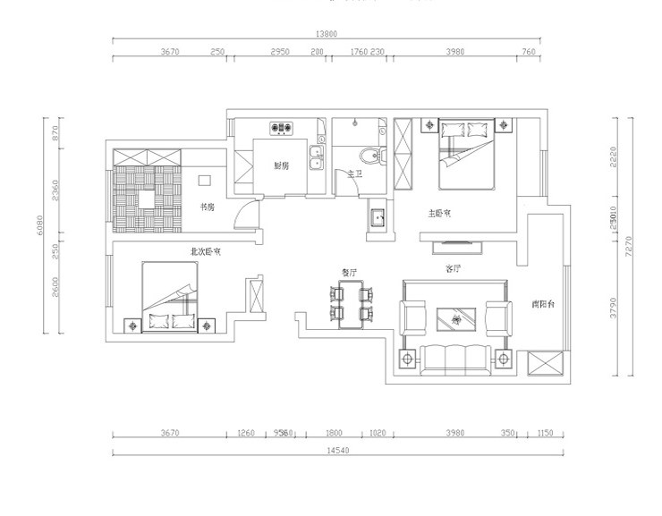
户型图
第1张
  • 案例详情

鑫丰雍景豪城二期-130平-现代风格-客厅3.jpg 鑫丰雍景豪城二期-130平-现代风格-客厅2.jpg 鑫丰雍景豪城二期-130平-现代风格-客厅1.jpg

客厅以暖色为主,透着内敛大方的气息,米白色L型的简约沙发有着一种大气之感,原木色的电视柜让空间显得闲适与惬意,深色木纹加铁艺的茶几彰显了现代风格的特色。深胡桃色和白色在电视背景墙上形成了完美的碰撞,使现代风格在电视背景墙上展现的淋漓尽致

鑫丰雍景豪城二期-130平-现代风格-餐厅1.jpg 鑫丰雍景豪城二期-130平-现代风格-餐厅2.jpg 鑫丰雍景豪城二期-130平-现代风格-餐厅3.jpg

餐厅给我们带来感觉就是简洁,时尚。以铁艺,玻璃为主,桌面选择黑色的镜面,很好的呼应了整体色调,显得空间整体简单而又时尚。两个黄色的餐椅使餐厅活跃了起来。

鑫丰雍景豪城二期-130平-现代风格-主卧室.jpg

卧室往往讲究的是温馨舒适,原木色搭配白色是温馨舒适的最好体。现原木色的飘窗柜即增加了实用性又让空间更加温馨,衣柜的采用了白色的百叶,更加现代更加美观。整体空间简洁,舒适,美观,使之成为了一个令人向往的空间。

鑫丰雍景豪城二期-130平-现代风格-卫生间.jpg

非常合理化的卫生间设计让我们感觉更加具有品质感,运用玻璃门将淋浴间隔开,更符合我们的生活需求。干湿分离的洗手盆,让它在这个空间中别具一格。冷色系的灯光让卫生间看起来更加宽敞大气。

鑫丰雍景豪城二期-130平-现代风格-厨房.jpg

厨房是家人们经常集中活动的地方,这也让它是家居生活中重要组成部分。宽敞的厨房设计体现了生活的乐趣。橱柜选用原木色,以本身的原木色彩示人,能够体现木材本身的美感,通过简单的线条在原木色的氛围中勾勒出一个洁净舒适的厨房环境。白色的台板搭配米色的墙砖,制造出温润舒适的视觉装饰效果。

鑫丰雍景豪城二期-130平-现代风格-平面图_.jpg

案例设计师

林凤装饰设计师

设计师:林凤装饰设计师

从业时间:14年

设计理念:用有限空间,做无限设计,成就梦想之家。

预约设计师

算算你家装修多少钱

报名即享丰厚赠品,享半价装修

免费报价
咨询热线:400-656-9909
20190221103704574636.jpg

精品设计案例

20180612134930523248.jpg 服务号二维码.jpg