立即预约 立即预约
免费定制整装家居

免费定制整装家居

一站置家 全程无忧 一省到底
hide.png

当前位置: 首页 > 装修案例效果图 > 九州御府

九州御府 300平 港式风格效果图

收藏
案例风格 港式 案例户型 四居 案例面积 300平米
楼盘名称 九州御府 设计师 林凤装饰设计师 案例类型 改善性住宅

设计理念:本案设定为港式风格,港式风格自然简洁,在追求实用性的同时,还要体现现代化社会的个性点,设计中多是使用简洁的硬朗的线条,多使用暗色系,营造的就是一种质朴内敛的时尚氛围。

客厅
第1张
第2张
第3张
第4张
第5张
餐厅
第1张
卧室
第1张
第2张
卫生间
第1张
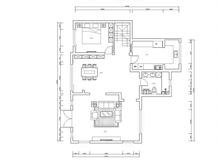
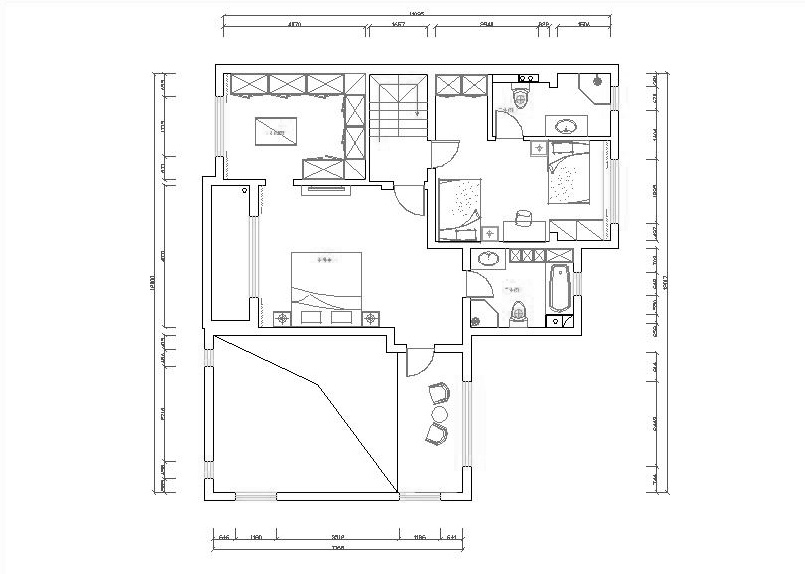
户型图
第1张
第2张
  • 案例详情

九州御府-300平-港式-客厅1.jpg 九州御府-300平-港式-客厅2.jpg 九州御府-300平-港式-客厅3.jpg 九州御府-300平-港式-客厅5.jpg 九州御府-300平-港式-客厅4.jpg

客厅处沙发背景墙采用灰色文化石,中间镶嵌几条亚克力灯片,客厅电视背景墙采用通顶的大理石给人一种强烈的视觉冲击,客厅地面铺设深色大理石让客厅更加庄重,客厅采用黑色皮质的沙发显得更加时尚。

九州御府-300平-港式-餐厅.jpg

餐厅采用了圆形的地心和圆形的棚面交相呼应,后面的酒柜更体现了生活的品质,斑马纹的餐椅更能与整个风格向融洽。

九州御府-300平-港式-次卧室.jpg 九州御府-300平-港式-主卧室.jpg

卧室地面采用地板铺设,有别于其他区域给人以安静温暖之感。床头背景墙采用竖线软包让整个空间更加温馨,棕色布艺窗帘为整体空间提升了稳重的气息,蓝色的抱枕为整个空间添加了一丝活跃气息。沙发背景墙采用整片的壁画让空间更加时尚,三面的边棚更加突出了时尚的主题,原木色的地板让空间更加温馨,棕色的壁画让空间更加活跃。

九州御府-300平-港式-卫生间.jpg

黑色的墙地砖给人一种更加庄重的视觉体验,白色的浴缸,白色的窗帘,白色的手盆 让整个空间显得更加干净整洁,加长的上柜不仅使储藏空间更加宽阔也在视觉上让整个空间更加宽阔。

九州御府-300平-港式-平面图2.jpg 九州御府-300平-港式-平面图1.jpg

案例设计师

林凤装饰设计师

设计师:林凤装饰设计师

从业时间:14年

设计理念:用有限空间,做无限设计,成就梦想之家。

预约设计师

算算你家装修多少钱

报名即享丰厚赠品,品质装修

免费报价
咨询热线:400-656-9909
20190221103704574636.jpg

精品设计案例

20180612134930523248.jpg 服务号二维码.jpg