立即预约 立即预约
免费定制整装家居

免费定制整装家居

一站置家 全程无忧 一省到底
hide.png

当前位置: 首页 > 装修案例效果图 > 华发领南荟

华发领南荟 158平 中式风格效果图

收藏
案例风格 中式 案例户型 三居 案例面积 158平米
楼盘名称 华发领南荟 设计师 林凤设计师 案例类型 改善性住宅

设计理念:本案真正做到轻装修,重装饰,以后期的软装配饰达到业主要求的设计感,总体布局上满足业主的生活需求为宗旨进行设计。

客厅
第1张
第2张
第3张
第4张
餐厅
第1张
卧室
第1张
卫生间
第1张
书房
第1张
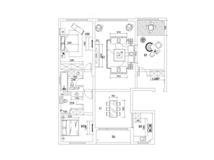
户型图
第1张
  • 案例详情

华发领南荟-158平-中式风格-客厅 03.jpg 华发领南荟-158平-中式风格-客厅 01.jpg 华发领南荟-158平-中式风格-客厅 02.jpg 华发领南荟-158平-中式风格-客厅 04.jpg

客户喜欢家居自由随意、沉稳、实用舒适,对比鲜明的色彩。本案客厅主要以咖色的墙面配以简单的木线条设计,做到了轻装修,简洁大方,电视背景墙的造型以木线和壁纸为主,沙发背景墙没设计硬装造型,选择照片墙的点缀,在照片色彩的搭配上选用对比色,给客厅空间增添了点缀色,使整个客厅看起来时尚感,温馨感兼具。

华发领南荟-158平-中式风格-餐厅.jpg

餐厅在本案中是一个小亮点,原餐厅区域的墙较短,所以本案设计了酒柜,不但延长了餐桌的墙面,还增加了储物空间,打造了一个实用性和时尚感兼具的餐厅。

华发领南荟-158平-中式风格-主卧式.jpg

主卧室墙面采用浅色暗纹理硅藻泥,使得整体空间更加时尚,家具则采用红木家具,让卧室轮廓感极强,层次有致。

华发领南荟-158平-中式风格-卫生间.jpg

卫生间墙地砖选择黄色仿理石纹理瓷砖,时尚 温馨,整体洁具也采用白色材系列,打造一个干净,简洁的卫浴空间。

华发领南荟-158平-中式风格-书房.jpg 华发领南荟-158平-中式风格-户型图.jpg

案例设计师

林凤设计师

设计师:林凤设计师

从业时间:13年

设计理念:无论含蓄还是奢华,能贴合主人味道,传达主人性格的房子才是我所追求的设计

预约设计师

算算你家装修多少钱

报名即享丰厚赠品,品质装修

免费报价
咨询热线:400-656-9909
20190221103704574636.jpg

精品设计案例

20180612134930523248.jpg 服务号二维码.jpg