立即预约 立即预约
免费定制整装家居

免费定制整装家居

一站置家 全程无忧 一省到底
hide.png

当前位置: 首页 > 装修案例效果图 > 万喜绿景

万喜绿景 128平 现代简约风格效果图

收藏
案例风格 现代简约 案例户型 三居 案例面积 128平米
楼盘名称 万喜绿景 设计师 林凤装饰设计师 案例类型 旧房改造

设计理念:整体设计为简约现代风格,将整个空间以大面积的色块进行各功能区的划分,在以颜色的区分范围进行吊顶的设计,是各功能区的划分更加明白清晰。

客厅
第1张
第2张
第3张
餐厅
第1张
第2张
卧室
第1张
厨房
第1张
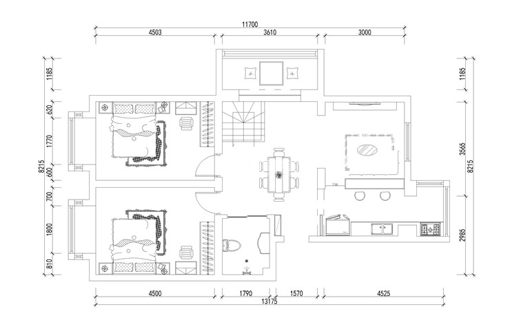
户型图
第1张
  • 案例详情

万喜绿景-128平米-现代风格-客厅1.jpg 万喜绿景-128平米-现代风格-客厅2.jpg 万喜绿景-128平米-现代风格-客厅3.jpg

客厅采用壁纸,既增加了背景强的层次感有不失高贵的气质。

万喜绿景-128平米-现代风格-餐厅2.jpg 万喜绿景-128平米-现代风格-餐厅1.jpg

餐厅与开敞的厨房在一起方便业主就餐。

万喜绿景-128平米-现代风格-卧室.jpg

深木色实木地面。暖黄色壁纸,营造温馨舒适的休息空间

万喜绿景-128平米-现代风格-厨房.jpg

开放厨房与客厅由吧台分割。可以休闲饮酒.

万喜绿景-128平米-现代风格-平面图.jpg

案例设计师

林凤装饰设计师

设计师:林凤装饰设计师

从业时间:6年

设计理念:Less is more.

预约设计师

算算你家装修多少钱

报名即享丰厚赠品,享半价装修

免费报价
咨询热线:400-656-9909
20190221103704574636.jpg

精品设计案例

20180612134930523248.jpg 服务号二维码.jpg