立即预约 立即预约
免费定制整装家居

免费定制整装家居

一站置家 全程无忧 一省到底
hide.png

当前位置: 首页 > 装修案例效果图 > 沈铁家园

沈铁家园 168平 美式风格效果图

收藏
案例风格 美式 案例户型 四居 案例面积 168平米
楼盘名称 沈铁家园 设计师 林凤装饰设计师 案例类型 儿童房

设计理念:整体设计为简约美式风格,将整个空间以大面积的色块进行各功能区的划分,在以颜色的区分范围进行吊顶的设计,是各功能区的划分更加明白清晰。

客厅
第1张
第2张
第3张
第4张
餐厅
第1张
卧室
第1张
卫生间
第1张
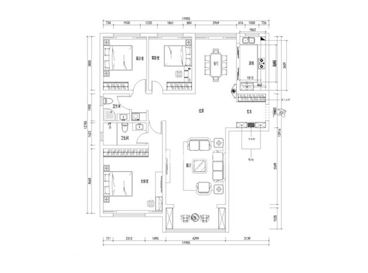
户型图
第1张
  • 案例详情

沈铁家园-168平米-简美风格-客厅5.jpg 沈铁家园-168平米-简美风格-客厅2.jpg 沈铁家园-168平米-简美风格-客厅3.jpg 沈铁家园-168平米-简美风格-客厅4.jpg

客厅采用有色乳胶漆撞色的结合,既增加了背景强的层次感有不失高贵的气质。

沈铁家园-168平米-简美风格-餐厅.jpg

餐厅与开敞的厨房在一起方便业主就餐。

沈铁家园-168平米-简美风格-卧室.jpg

深木色实木地面。暖黄色壁纸,营造温馨舒适的休息空间

沈铁家园-168平米-简美风格-卫生间.jpg 沈铁家园-168平米-简美风格-平面图.jpg

案例设计师

林凤装饰设计师

设计师:林凤装饰设计师

从业时间:6年

设计理念:Less is more.

预约设计师

算算你家装修多少钱

报名即享丰厚赠品,享半价装修

免费报价
咨询热线:400-656-9909
20190221103704574636.jpg

精品设计案例

20180612134930523248.jpg 服务号二维码.jpg