立即预约 立即预约
免费定制整装家居

免费定制整装家居

一站置家 全程无忧 一省到底
hide.png

当前位置: 首页 > 装修案例效果图 > 中粮隆玺

中粮隆玺 141平 港式风格效果图

收藏
案例风格 港式 案例户型 四居 案例面积 141平米
楼盘名称 中粮隆玺 设计师 林凤装饰设计师 案例类型 婚房

设计理念:现代简约风格是以简约为主的装修风格。提出适合流水线生产的家具造型,在建筑装饰上提倡简约,简约风格的特色是将设计的元素、色彩、照明、原材料简化到最少的程度,但对色彩、材料的质感要求很高。因此,简约的空间设计通常非常含蓄,往往能达到以少胜多、以简胜繁的效果。现代简约风格

客厅
第1张
第2张
第3张
餐厅
第1张
第2张
卧室
第1张
卫生间
第1张
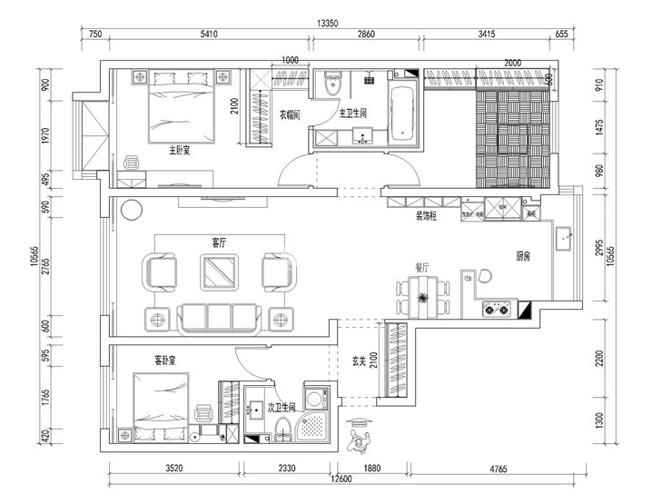
户型图
第1张
  • 案例详情

中粮隆玺-141平米-港式-客厅5.jpg 中粮隆玺-141平米-港式-客厅2.jpg 首图.jpg

客厅的家具应根据室的活动和功能性质来布置,其中较基本的、也是较低限度的要求是设计包括茶几在内的一组休息、谈话使用的座位(一般为沙发),以及相应的、诸如电视、音响、书报、音视资料、饮料及用具等设备用品,其他要求就要根据起居室的单一或复杂程度,增添相应家具设备

中粮隆玺-141平米-港式-餐厅.jpg 中粮隆玺-141平米-港式-客厅3.jpg 中粮隆玺-141平米-港式-卧室.jpg

厨房功用是贮存日子必备,为日常日子供给餐饮的确保。按厨房的功用可分为以 下区域:贮存、洗刷和烹调。一般又把这三个区域所构成的三个点所构成的三角形称为厨房作业三角形,思考表现厨房的功用性。由于厨房空间细长,底柜规划侧重表现精约个性,尽管方式看似简略,但每个抽屉内部是不尽相同的使用各种内置式抽屉和金属拉蓝,给主人供给了便利的操作空间。

中粮隆玺-141平米-港式-卫生间.jpg

卫生间是家庭成员进行个人卫生的重要场所,是具有便溺和清洗双重功能的特定环境,实用性强,利用率高,应该合理巧妙的利用每一寸面积。卫生间虽小,但也应讲究协调、规整。本案设计这个卫生间,都做了些改动。卫生间改变了门洞位置,增加了一面推拉门,使卫生间区分干湿区域,让卫生间可以干净、清洁,从主卧室和小孩房进入主卫空间,更加合理化了卫浴空间。

中粮隆玺-141平米-港式-平面图1.jpg

案例设计师

林凤装饰设计师

设计师:林凤装饰设计师

从业时间:8年

设计理念:实用至上

预约设计师

算算你家装修多少钱

报名即享丰厚赠品,品质装修

免费报价
咨询热线:400-656-9909
20190221103704574636.jpg

精品设计案例

20180612134930523248.jpg 服务号二维码.jpg