立即预约 立即预约
免费定制整装家居

免费定制整装家居

一站置家 全程无忧 一省到底
hide.png

当前位置: 首页 > 装修案例效果图 > 顶盛国际花园

顶盛国际花园 280平 新中式风格效果图

收藏
案例风格 新中式 案例户型 别墅 案例面积 280平米
楼盘名称 顶盛国际花园 设计师 林凤装饰全案设计师 案例类型 改善性住宅

设计理念:本案的风格是新中式,温馨舒适,文雅,自然是本案主打的效果,整体咖色壁纸,黑胡桃定制木色,加上玫瑰金的钢制品和硬包彩云做装饰墙,加上一些现代元素点缀,体现新中式的风格特点。

客厅
第1张
第2张
第3张
第4张
第5张
餐厅
第1张
第2张
卧室
第1张
第2张
卫生间
第1张
第2张
厨房
第1张
过廊
第1张
第2张
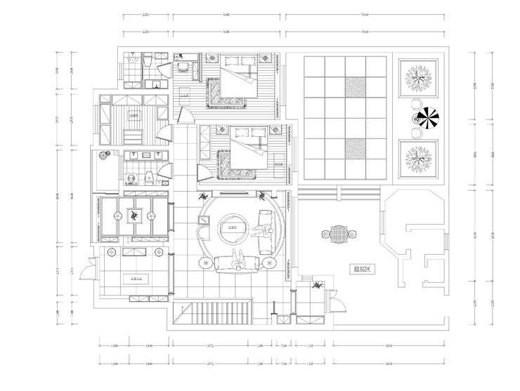
户型图
第1张
  • 案例详情

顶盛国际花园-280平-新中式-客厅3.jpg 顶盛国际花园-280平-新中式-客厅2.jpg 顶盛国际花园-280平-新中式-客厅4.jpg 顶盛国际花园-280平-新中式-客厅1.jpg 顶盛国际花园-280平-新中式-客厅5.jpg

本案客厅首先通过改造变成宽大的空间,由于南北各有玄关,为了达到通透和宽敞明亮的效果,吊棚采用现代元素的直线吊棚分隔区域,电视墙用玫瑰金钢制品做出造型框架,中心铺贴彩云样式的硬包。地面整体铺贴木纹样式瓷砖做底色的铺垫。

顶盛国际花园-280平-新中式-餐厅1.jpg 顶盛国际花园-280平-新中式-餐厅2.jpg

本案餐厅在设计师的引导下,改造到负一层,从而也变成宽大的中餐和西餐厅两个区域,墙面呼应客厅和整体的元素,也使用定制硬包图案,中间夹杂玫瑰金色钢条收边和分隔装饰。

顶盛国际花园-280平-新中式-卧室1.jpg 顶盛国际花园-280平-新中式-卧室2.jpg

本案的卧室通过现代直线造型棚做出灯光效果后,墙面采用大面积浅咖色布纹壁纸,床头造型用木线收边分隔后,铺贴整张壁纸画做装饰的重心主体墙面。家具及地板采用统一胡桃木色。

顶盛国际花园-280平-新中式-浴室2.jpg 顶盛国际花园-280平-新中式-浴室1.jpg

本案的卫生间采用灰色仿古系列的地砖上墙铺法。棚顶直接用防潮石膏板做平棚,用定制式的浴屏来达到卫生间的干湿分离,从而使得卫生间区域明显和实用性更高一层。

顶盛国际花园-280平-新中式-厨房.jpg

本案的厨房如同餐厅一样,被改造了负一层,通过土建的搭建之后变成一个独立而且宽阔的厨房,淡黄色木纹瓷砖铺贴做底色,橱柜采用去柳木本色,为了显得不压抑,设计了很多开放格和玻璃门,台面理石用白色大理石

顶盛国际花园-280平-新中式-过廊.jpg 顶盛国际花园-280平-新中式-过廊2.jpg 顶盛国际花园-280平-新中式-平面图.jpg

案例设计师

林凤装饰全案设计师

设计师:林凤装饰全案设计师

从业时间:13年

设计理念:设计:是一种追求完美的生活态度,是一种追求品味的生活

预约设计师

算算你家装修多少钱

报名即享丰厚赠品,享半价装修

免费报价
咨询热线:400-656-9909
20190221103704574636.jpg

精品设计案例

20180612134930523248.jpg 服务号二维码.jpg