立即预约 立即预约
免费定制整装家居

免费定制整装家居

一站置家 全程无忧 一省到底
hide.png

当前位置: 首页 > 装修案例效果图 > 名流印象

名流印象 100平 欧式风格效果图

收藏
案例风格 欧式 案例户型 二居 案例面积 100平米
楼盘名称 名流印象 设计师 林凤装饰设计师 案例类型 婚房

设计理念:整体设计为现代简约风格,将整个空间以黑白灰色块进行各功能区的划分,在以颜色的区分范围进行吊顶的设计,是各功能区的划分更加明白清晰。

客厅
第1张
第2张
第3张
餐厅
第1张
卧室
第1张
第2张
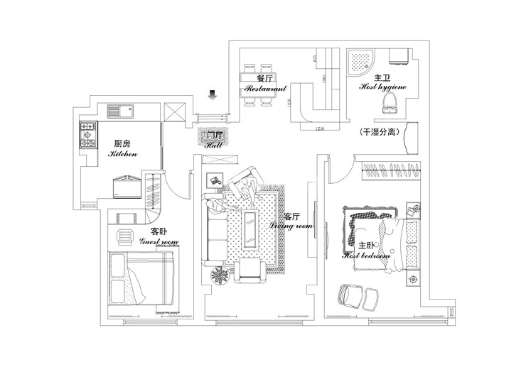
户型图
第1张
  • 案例详情

名流印象-100平米-简欧风格-客厅1.jpg 名流印象-100平米-简欧风格-客厅2.jpg 名流印象-100平米-简欧风格-客厅4.jpg

客厅采用局部镜片装饰,尽显雍容华贵。

名流印象-100平米-简欧风格-客厅3.jpg 名流印象-100平米-简欧风格-主卧.jpg 名流印象-100平米-简欧风格-客卧.jpg

整体采用蓝色,寓意海洋。

名流印象-100平米-简欧风格-平面图.jpg

案例设计师

林凤装饰设计师

设计师:林凤装饰设计师

从业时间:6年

设计理念:Less is more.

预约设计师

算算你家装修多少钱

报名即享丰厚赠品,享半价装修

免费报价
咨询热线:400-656-9909
20190221103704574636.jpg

精品设计案例

20180612134930523248.jpg 服务号二维码.jpg