立即预约 立即预约
免费定制整装家居

免费定制整装家居

一站置家 全程无忧 一省到底
hide.png

当前位置: 首页 > 装修案例效果图 > 中海和平之门

中海和平之门 109平 北欧风格效果图

收藏
案例风格 北欧 案例户型 三居 案例面积 109平米
楼盘名称 中海和平之门 设计师 林凤装饰精英设计师 案例类型 婚房

设计理念:本案主要以北欧风格的格调定义整个空间的氛围,简约、舒适、清新的整体效果,针对业主的需求特别设计了几处多功能储物空间,对整体空间的空气流通做了调整,使空气对流更合理。

客厅
第1张
第2张
第3张
餐厅
第1张
第2张
第3张
卧室
第1张
第2张
卫生间
第1张
阳台
第1张
过廊
第1张
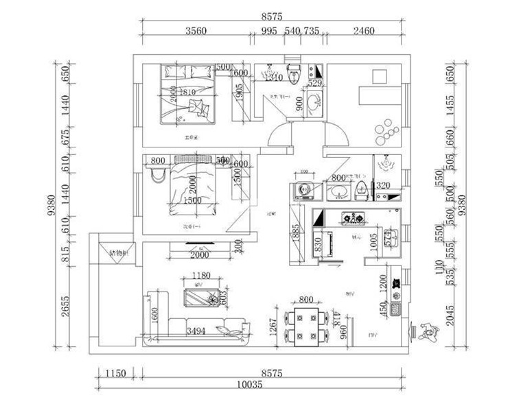
户型图
第1张
  • 案例详情

和平之门-109平-北欧风格-客厅 (1).jpg 和平之门-109平-北欧风格-客厅 (2).jpg 和平之门-109平-北欧风格-客厅 (3).jpg

客厅整体采用无顶设计、通过色彩配饰的搭配替代硬装复杂的造型,单人位采用跳色沙发,和抱枕地毯的颜色呼应让空间的色彩更加丰富有弹性,沙发墙面采用灰色调色涂色方案、给空间增添几分厚重感。

和平之门-109平-北欧风格-餐厅 (3).jpg 和平之门-109平-北欧风格-餐厅(1).jpg 和平之门-109平-北欧风格-餐厅(2).jpg

餐厅的餐桌椅采用原木色材质、和整个空间的家具协调统一、木色上的些许变化更让家具增添了几分层次感。

和平之门-109平-北欧风格-主卧.jpg 和平之门-109平-北欧风格-次卧.jpg

卧室的床头都用了不同的材料做了床头墙的修饰、结合壁灯的设计造型上更具有观赏性的同时、夜晚的照明也显得尤为实用。

和平之门-109平-北欧风格-主卫.jpg

本案卫生间为最标准户型,由于卫生间要满足手盆、坐便、花洒、洗衣机等功能性,因此设计师精心挑选了浅色墙砖,暖白色条纹瓷砖让整个空间多了些许跳动感。手盆上方设计师还精心搭配了小植物,温和又恬美。

和平之门-109平-北欧风格-阳台.jpg 和平之门-109平-北欧风格-过廊 (1).jpg 和平之门-109平-北欧风格-平面图.jpg

案例设计师

林凤装饰精英设计师

设计师:林凤装饰精英设计师

从业时间:9年

设计理念:艺术充满生活 设计无处不在

预约设计师

算算你家装修多少钱

报名即享丰厚赠品,享半价装修

免费报价
咨询热线:400-656-9909
20190221103704574636.jpg

精品设计案例

20180612134930523248.jpg 服务号二维码.jpg