立即预约 立即预约
免费定制整装家居

免费定制整装家居

一站置家 全程无忧 一省到底
hide.png

当前位置: 首页 > 装修案例效果图 > 金地铁西檀府

金地铁西檀府 125平 美式风格效果图

收藏
案例风格 美式 案例户型 三居 案例面积 125平米
楼盘名称 金地铁西檀府 设计师 林凤装饰设计师 案例类型 婚房

设计理念:整体设计为简约美式风格,将整个空间以大面积的色块进行各功能区的划分,在以颜色的区分范围进行吊顶的设计,是各功能区的划分更加明白清晰。这些元素也正好迎合了有文化感、情调感,给人一种自由随意的温馨。

客厅
第1张
第2张
第3张
第4张
餐厅
第1张
卧室
第1张
卫生间
第1张
厨房
第1张
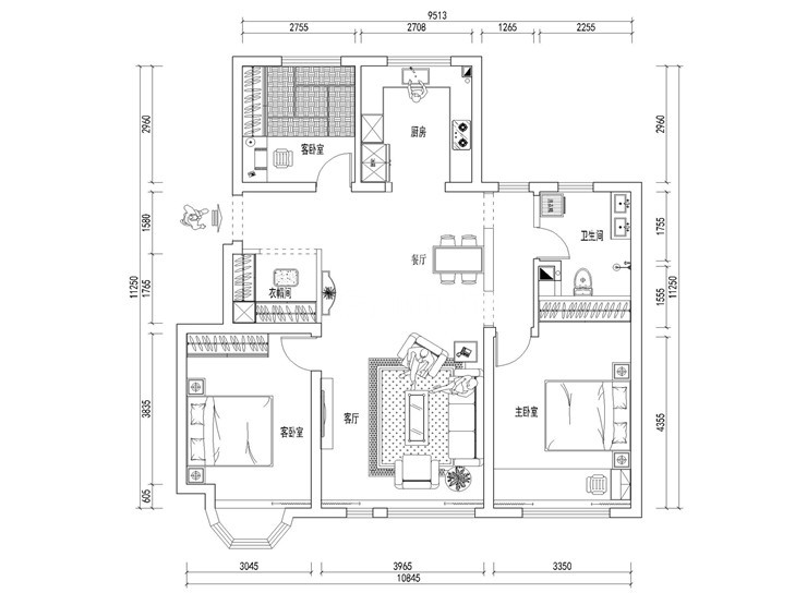
户型图
第1张
  • 案例详情

金地铁西檀府-125平米-简约美式-客厅 (2).jpg 金地铁西檀府-125平米-简约美式-客厅.jpg 金地铁西檀府-125平米-简约美式-客厅1.jpg 金地铁西檀府-125平米-简约美式-沙发背景.jpg

客厅作为待客区域,要求简练明快,采用有色乳胶漆撞色的结合,既增加了背景墙的层次感有不失高贵的气质。

金地铁西檀府-125平米-简约美式-餐厅.jpg

餐厅多用略有复古味道、纯实木的深色家具进行搭配。壁画和花卉椅子是十分贴近自然的组合。

金地铁西檀府-125平米-简约美式-卧室.jpg

卧室家具布置较为温馨,作为业主的私密空间,主要以功能性和使用舒适为考虑的重点,让人有一种贴近生活十分放松的感觉。

金地铁西檀府-125平米-简约美式-卫生间.jpg

砖石铺贴了一个大气的卫浴间,盥洗盆和收纳柜合二为一,选择了仿古的墙砖并不单调。

金地铁西檀府-125平米-简约美式-厨房.jpg

厨房是开敞的,厨房的要求就是功能强大又简单耐用。空间利用需要大的储物空间,宽敞的位置和足够的操作台面。在装饰上选择了仿古面的墙砖,更加展现简美的韵味。

金地铁西檀府-125平米-简约美式-平面图.jpg

案例设计师

林凤装饰设计师

设计师:林凤装饰设计师

从业时间:8年

设计理念:实用至上

预约设计师

算算你家装修多少钱

报名即享丰厚赠品,品质装修

免费报价
咨询热线:400-656-9909
20190221103704574636.jpg

精品设计案例

20180612134930523248.jpg 服务号二维码.jpg