立即预约 立即预约
免费定制整装家居

免费定制整装家居

一站置家 全程无忧 一省到底
hide.png

当前位置: 首页 > 装修案例效果图 > 金地左岸

金地左岸 108平 现代简约风格效果图

收藏
案例风格 现代简约 案例户型 二居 案例面积 108平米
楼盘名称 金地左岸 设计师 林凤装饰设计师 案例类型 改善性住宅

设计理念:该案设计采用现代设计风格风格,用一种最简单、直接、功能化强,颜色对比明显的设计手法还给业主一个时尚不与别人雷同的的居住环境,清爽简洁干净,从很大程度上阐述了一种做自己,与别人不同的生活态度。

客厅
第1张
第2张
第3张
餐厅
第1张
卧室
第1张
卫生间
第1张
厨房
第1张
阳台
第1张
第2张
书房
第1张
第2张
门厅
第1张
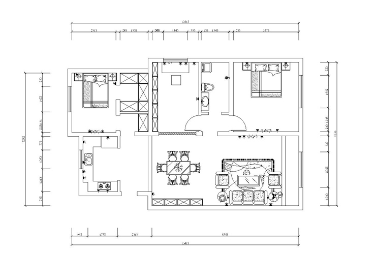
户型图
第1张
  • 案例详情

金地左岸-108㎡-现代-客厅1.jpg 金地左岸-108㎡-现代-客厅2.jpg 金地左岸-108㎡-现代-客厅3.jpg

设计师在客厅的设计上完全从户主的喜好角度出发,家具的色彩的总体还是从现代风格的基础上开始延伸,米色的布艺沙发搭配暖色的地砖,使整体的客厅,又多添加了一点点和谐的感觉。家具配置并不单一而是让客厅空间尽显大气。米色的沙发,原木色的茶几,灰色的竖纹地毯。把空间的整个对比度进一步的拉伸。沙发墙上的深色壁纸也给整体空间加入了深的颜色。使整体空间增色不少。

金地左岸-108㎡-现代-餐厅1.jpg

木质桌体黑玻璃的桌面和灰色皮质的餐椅在材质上形成对比,餐桌餐椅的颜色和客厅电视柜的颜色相呼应让两个空间融为一体,棚顶的原型造型棚与原型的餐桌也符合中国的天圆地方,餐厅与书房中间的黑框磨花玻璃本是起到隔断的作用,但是其本身撞色效果也大大出乎设计师的意料之外的好。

金地左岸-108㎡-现代-主卧室1.jpg

主卧室采用了灰色的壁纸来衬托这个空间,木色的地板透漏着年轻的气息,白色的衣柜简洁大方,充满现代气息的双人床与略带北欧感觉的挂画,形成了鲜明的对比,有对比有反冲。整体空间看似纷乱,其实早已融为一体。

金地左岸-108㎡-现代-卫生间1.jpg

暖白色的大墙砖,块块分明。与地面的小砖整体又一次呼应了本案的感觉,整体空间营造的很成功。业主非常满意,非常喜欢。墙砖,地砖。狭长的卫生间整体空间特别够用,洗漱柜,坐便,洗衣机依次掰开,总体的布局非常实用,

金地左岸-108㎡-现代-厨房1.jpg

厨房完完全全的是现代风格,烤漆的橱柜,暖白的墙砖无处不透漏着现代的气息。白色的吊柜,蓝灰色的地柜之前又形成了鲜明对比,有深有浅,深浅结合,使整体厨房的氛围感觉更上一层楼。

金地左岸-108㎡-现代-阳台2.jpg 金地左岸-108㎡-现代-阳台1.jpg 金地左岸-108㎡-现代-书房2.jpg 金地左岸-108㎡-现代-书房1.jpg 金地左岸-108㎡-现代-玄关1.jpg 金地左岸-108㎡-现代-平面图.jpg

案例设计师

林凤装饰设计师

设计师:林凤装饰设计师

从业时间:8年

设计理念:认真做人,认真生活,认真设计

预约设计师

算算你家装修多少钱

报名即享丰厚赠品,享半价装修

免费报价
咨询热线:400-656-9909
20190221103704574636.jpg

精品设计案例

20180612134930523248.jpg 服务号二维码.jpg