立即预约 立即预约
免费定制整装家居

免费定制整装家居

一站置家 全程无忧 一省到底
hide.png

当前位置: 首页 > 装修案例效果图 > 五矿弘园

五矿弘园 97平 现代简约风格效果图

收藏
案例风格 现代简约 案例户型 二居 案例面积 97平米
楼盘名称 五矿弘园 设计师 林凤设计师 案例类型 婚房

设计理念:本方案是现代简约风格,主要利用平面分割,把厨房卫生间都扩的比较大,尤其开放式厨房的设计和简洁的颜色的搭配来体现,客厅以干净实用为主,造型简单,方便打理,时尚气息强。

客厅
第1张
第2张
第3张
餐厅
第1张
卧室
第1张
卫生间
第1张
厨房
第1张
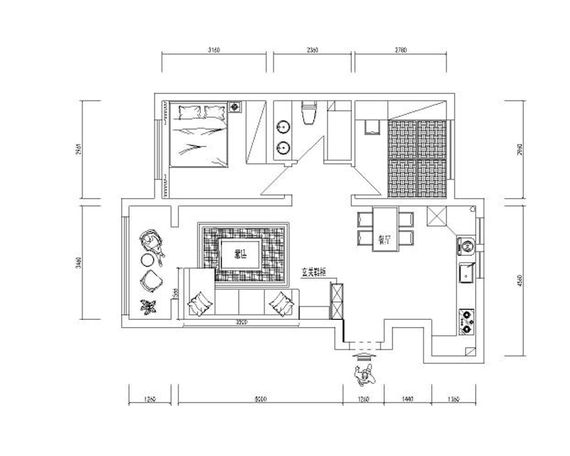
户型图
第1张
  • 案例详情

郭斌-五矿弘园-97㎡-现代风格-客厅4.jpg 郭斌-五矿弘园-97㎡-现代风格-客厅1.jpg 郭斌-五矿弘园-97㎡-现代风格-客厅2.jpg

客厅地面主体暖色地砖,背景墙石膏墙面凸出贴素色壁纸,简洁大方,棚面吊棚和餐厅做区域划分,既有灯光效果又不繁琐,石膏棚线棚面与墙面相连,造型简单层次感好。

郭斌-五矿弘园-97㎡-现代风格-餐厅.jpg

餐厅墙面主要以照片墙,用白色做底色,把家人外出生活照片挂在墙面,体现出家庭的温馨感觉.黑色的灯罩搭配白色的餐椅形成强烈的对比,表现出强烈的美感。

郭斌-五矿弘园-97㎡-现代风格-卧室1.jpg

主卧是的主题是温馨,碎花壁纸搭配浅色的床将整个空间氛围感演绎得淋漓尽致,吊鹏上虚光灯带更为整个空间增色不少。

郭斌-五矿弘园-97㎡-现代风格-卫生间.jpg

暖黄色调160*160墙砖,搭配腰线,分割出上浅下深的颜色,加之简欧实木卫浴柜让整个卫生间档次倍增。

郭斌-五矿弘园-97㎡-现代风格-厨房1.jpg 郭斌-五矿弘园-97㎡-现代风格-平面.jpg

案例设计师

林凤设计师

设计师:林凤设计师

从业时间:7年

设计理念:以人为本,用心设计,打造最适合你个性空间

预约设计师

算算你家装修多少钱

报名即享丰厚赠品,享半价装修

免费报价
咨询热线:400-656-9909
20190221103704574636.jpg

精品设计案例

20180612134930523248.jpg 服务号二维码.jpg