立即预约 立即预约
免费定制整装家居

免费定制整装家居

一站置家 全程无忧 一省到底
hide.png

当前位置: 首页 > 装修案例效果图 > 金地檀府

金地檀府 125平 美式风格效果图

收藏
案例风格 美式 案例户型 三居 案例面积 125平米
楼盘名称 金地檀府 设计师 林凤装饰设计师 案例类型 改善性住宅

设计理念:整体设计为简约美式风格,将整个空间以大面积的色块进行各功能区的划分,在以颜色的区分范围进行吊顶的设计,是各功能区的划分更加明白清晰。

客厅
第1张
第2张
第3张
餐厅
第1张
第2张
卫生间
第1张
厨房
第1张
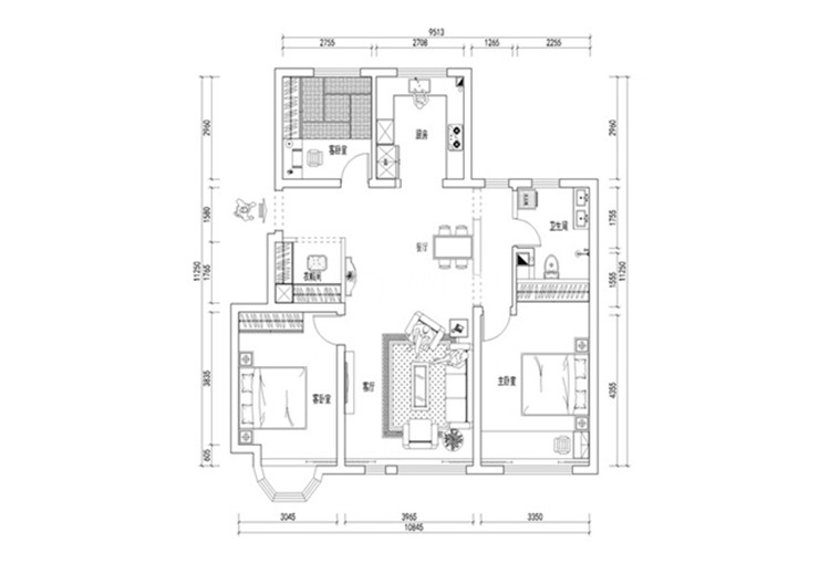
户型图
第1张
  • 案例详情

金地檀府-125平-美式风格-客厅1.jpg 金地檀府-125平-美式风格-沙发背景.jpg 金地檀府-125平-美式风格-电视北京.jpg

客厅采用有色乳胶漆撞色的结合,既增加了背景强的层次感有不失高贵的气质。

金地檀府-125平-美式风格-餐厅背景.jpg 金地檀府-125平-美式风格-餐厅.jpg

餐厅与开敞的厨房在一起方便业主就餐。

金地檀府-125平-美式风格-卫生间.jpg

餐厅与开敞的厨房在一起方便业主就餐。

金地檀府-125平-美式风格-厨房.jpg 金地檀府-125平-美式风格-平面图.jpg

案例设计师

林凤装饰设计师

设计师:林凤装饰设计师

从业时间:6年

设计理念:Less is more.

预约设计师

算算你家装修多少钱

报名即享丰厚赠品,享半价装修

免费报价
咨询热线:400-656-9909
20190221103704574636.jpg

精品设计案例

20180612134930523248.jpg 服务号二维码.jpg