立即预约 立即预约
免费定制整装家居

免费定制整装家居

一站置家 全程无忧 一省到底
hide.png

当前位置: 首页 > 装修案例效果图 > 顶盛国际花园

顶盛国际花园 93平 现代简约风格效果图

收藏
案例风格 现代简约 案例户型 二居 案例面积 93平米
楼盘名称 顶盛国际花园 设计师 林凤装饰设计师 案例类型 婚房

设计理念:整个空间是新婚两口的居住环境,给业主的设计是现代的间接地风格,个别地方采用淡淡的暖黄色,金属流行元素的应用和淡黄色的搭配,不仅让整个空间显得简洁大方,宽敞明亮,也让整个家庭空间的感觉更加的温馨

客厅
第1张
第2张
第3张
第4张
餐厅
第1张
卧室
第1张
卫生间
第1张
第2张
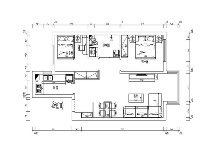
户型图
第1张
  • 案例详情

顶盛国际花园-93平-现代风格-客厅 (2).jpg 顶盛国际花园-93平-现代风格-客厅 (1).jpg 顶盛国际花园-93平-现代风格-客厅 (3).jpg 顶盛国际花园-93平-现代风格-客厅 (4).jpg

客厅作为待客区域,一般要求简洁明快,同时装修较其它空间要更明快光鲜,通常使用大量的瓷砖铺地;而且金属质感的元素,不仅反映在软装摆件上,同时也反映在餐桌位置和玄关。总体而言,现代风格的客厅是宽敞而明亮的。

顶盛国际花园-93平-现代风格-餐厅.jpg 顶盛国际花园-93平-现代风格-主卧.jpg

现代家居的卧室布置较为简约,作为主人的私密空间,主要以功能性和实用舒适为考虑的重点,卧室和客厅的现代简约既有整体的简洁,又有主卧室的温馨,多用温馨柔软的成套布艺来装点,同时在软装和用色上非常统一。

顶盛国际花园-93平-现代风格-卫生间.jpg 顶盛国际花园-93平-现代风格-客卧.jpg 顶盛国际花园-93平-现代风格-户型图.jpg

案例设计师

林凤装饰设计师

设计师:林凤装饰设计师

从业时间:11年

设计理念:处处是细节的家,应该处处用心

预约设计师

算算你家装修多少钱

报名即享丰厚赠品,品质装修

免费报价
咨询热线:400-656-9909
20190221103704574636.jpg

精品设计案例

20180612134930523248.jpg 服务号二维码.jpg