立即预约 立即预约
免费定制整装家居

免费定制整装家居

一站置家 全程无忧 一省到底
hide.png

当前位置: 首页 > 装修案例效果图 > 美的城

美的城 86平 北欧风格效果图

收藏
案例风格 北欧 案例户型 二居 案例面积 86平米
楼盘名称 美的城 设计师 林凤设计师 案例类型 婚房

设计理念:本案以北欧风格为主,而当今社会的快节奏抹去当年的柔美,北欧风格载体正在被当下设主流设计融入。设计师正是抓住对北欧风格设计的精髓为业主量身打造了不一样北欧风格。

客厅
第1张
第2张
第3张
餐厅
第1张
第2张
第3张
卧室
第1张
卫生间
第1张
厨房
第1张
第2张
第3张
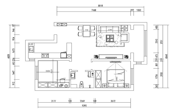
户型图
第1张
  • 案例详情

美的城-86平-北欧风格-客厅1.jpg 美的城-86平-北欧风格-客厅2.jpg 美的城-86平-北欧风格-客厅3.jpg

外观和材质上仍保留北欧风格元素,自然、淳朴看起来更整洁、美观。灰色的布艺沙发传达了单纯、休闲,原木色的茶几、电视柜和其他装饰柜搭配,让其与墙面的色彩相呼应,在加上精美装饰画的点缀达到整体的效果,耐人寻味处透露亘古而久远的芬芳。

美的城-86平-北欧风格-餐厅1.jpg 美的城-86平-北欧风格-餐厅2.jpg 美的城-86平-北欧风格-餐厅3.jpg

餐厅是一个家的凝聚爱的体现,传递这人们对家向往。而北欧风格对颜色和材质的结合也是相当严格,直线条的餐椅卡其色布艺在加上理石的餐桌使设计别出心裁,桌椅与藤席编制花框的同时柠檬黄的小花为空间增添了几分生机。

美的城-86平-北欧风格-卧室.jpg

卧室是整套房子中最私人也是最体现温馨休闲感的空间。原木色的床与家具搭配上色彩鲜艳的软装点缀,充分体现自然、舒适、简洁、时尚的新生活理念,营造完美舒适的生活空间,给人带来耳目一新的感觉。

美的城-86平-北欧风格-卫生间.jpg

卫生间生活的重要组成部分,空间小且功能齐全也是设计的难点和亮点的体现,合理的摆放和空间利用率是首先考虑的。地砖和墙砖颜色的选择使整体光感通透明亮,木色的洗漱柜和陶瓷完美融合将视觉空间放大,达到空间上的一个互补。

美的城-86平-北欧风格-厨房1.jpg 美的城-86平-北欧风格-厨房2.jpg 美的城-86平-北欧风格-厨房3.jpg

白色瓷砖和胡桃色材质组成了生活部分厨房,白色的石膏板吊顶与地砖映衬天与地平衡。同时也体现家里主人对生活和工作的态度,闲暇之时做上几道拿手的好菜和家人欢聚一堂。

美的城-86平-北欧风格-平面图.jpg

案例设计师

林凤设计师

设计师:林凤设计师

从业时间:7年

设计理念:以人为本,用心设计,打造最适合你个性空间

预约设计师

算算你家装修多少钱

报名即享丰厚赠品,品质装修

免费报价
咨询热线:400-656-9909
20190221103704574636.jpg

精品设计案例

20180612134930523248.jpg 服务号二维码.jpg