立即预约 立即预约
免费定制整装家居

免费定制整装家居

一站置家 全程无忧 一省到底
hide.png

当前位置: 首页 > 装修案例效果图 > 黎明柳林苑

黎明柳林苑 77平 现代简约风格效果图

收藏
案例风格 现代简约 案例户型 二居 案例面积 77平米
楼盘名称 黎明柳林苑 设计师 林凤装饰设计师 案例类型 婚房

设计理念:本案业主不是很明确自己喜欢的风格,通过在色彩,文化定位等最终把风格定位在现代简约风格,主要的设计理念是给业主营造一个时尚、简约的居住环境。

客厅
第1张
第2张
第3张
第4张
第5张
第6张
卧室
第1张
卫生间
第1张
厨房
第1张
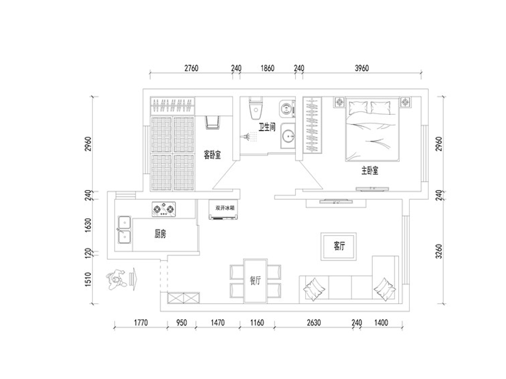
户型图
第1张
  • 案例详情

吕娜-黎明柳林苑-现代-客厅 (1).jpg 吕娜-黎明柳林苑-现代-客厅 (2).jpg 吕娜-黎明柳林苑-现代-客厅 (3).jpg 吕娜-黎明柳林苑-现代-客厅 (5).jpg 吕娜-黎明柳林苑-现代-客厅 (4).jpg 吕娜-黎明柳林苑-现代-客厅 (6).jpg

在客厅电视背景墙的造型上采用了石膏板与玻璃的竖条纹造型设计,是想通过这样的设计,拉伸整个空间的举架高度,同时又搭配了曲线条的壁纸,使电视背景墙整体看上去比较灵动,不刻板。在灯具和客厅装饰品上,也采用了相同的水晶元素,和谐统一。

吕娜-黎明柳林苑-现代-主卧室.jpg

主卧室挑选白色板式床和漆面有质感的床头柜 搭配现代感十足的壁纸,使得整体空间更加时尚,轮廓感极强,层次有致。

吕娜-黎明柳林苑-现代-卫生间.jpg

卫生间相对来说,面积较小,所以墙地砖大面积 选择浅米色理石纹理的瓷砖,干净自然,但在局部区域采用黑色马赛克做搭配设计,强烈的反差色调,再搭配白色洁具,打造一个纯净的卫浴空间。

吕娜-黎明柳林苑-现代-厨房.jpg

厨房以白色格子造型的砖配上深豆沙色烤漆橱柜,主要是想让拥挤的厨房通过深浅色系的搭配,看起来更宽敞,给女主人营造一个舒适的烹饪环境。

吕娜-黎明柳林苑-现代-平面_旋转.jpg

案例设计师

林凤装饰设计师

设计师:林凤装饰设计师

从业时间:11年

设计理念:艺术的手法,以人为本

预约设计师

算算你家装修多少钱

报名即享丰厚赠品,享半价装修

免费报价
咨询热线:400-656-9909
20190221103704574636.jpg

精品设计案例

20180612134930523248.jpg 服务号二维码.jpg