立即预约 立即预约
免费定制整装家居

免费定制整装家居

一站置家 全程无忧 一省到底
hide.png

当前位置: 首页 > 装修案例效果图 > 保利溪湖淋语

保利溪湖淋语 129平 美式风格效果图

收藏
案例风格 美式 案例户型 三居 案例面积 129平米
楼盘名称 保利溪湖淋语 设计师 林凤装饰设计师 案例类型 婚房

设计理念:本案以现代美式为基调。美式风格,顾名思义是来自于美国的装修和装饰风格。美式风格以宽大,舒适,杂糅各种风格而著称。本案想通过相对简单的硬装造型,配上舒适柔美的美式家具,来打造一个静谧舒适、奢华时尚的现代美式风格的家居空间,使得作品更加新颖富有时代感。

客厅
第1张
第2张
第3张
第4张
第5张
第6张
第7张
餐厅
第1张
卧室
第1张
卫生间
第1张
厨房
第1张
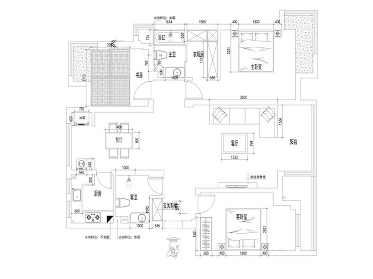
户型图
第1张
  • 案例详情

吕娜-保利溪湖淋语129平-美式-客厅 (1).jpg 吕娜-保利溪湖淋语129平-美式-客厅 (2).jpg 吕娜-保利溪湖淋语129平-美式-客厅 (3).jpg 吕娜-保利溪湖淋语129平-美式-客厅 (5).jpg 吕娜-保利溪湖淋语129平-美式-客厅 (4).jpg 吕娜-保利溪湖淋语129平-美式-客厅 (6).jpg 吕娜-保利溪湖淋语129平-美式-客厅 (7).jpg

客厅没有设计复杂的吊棚,而是做了简洁的石膏线,电视背景墙是客厅的一个亮点,将硬朗的线条与美式感十足的壁纸结合到一起,体现了美式的时尚感,弧优美的家具款式运用高级灰、米白色色系搭配,来营造奢华 舒适感,素雅却不单调

吕娜-保利溪湖淋语129平-美式-餐厅.jpg

餐厅在视觉上营造平衡感和舒适感,灰色的地板墙面设计搭配白色的餐边柜,餐边柜上精致的装饰品提高了空间的艺术品味,增强了空间的层次性、趣味性巧妙表达主人情怀。

吕娜-保利溪湖淋语129平-美式-主卧室.jpg

卧室着重以现代美式简约风格的手法设计,利用色彩和线条的巧妙装饰,营造出一种温馨却又有序的空间效果。

吕娜-保利溪湖淋语129平-美式-卫生间.jpg

卫生间的缺点是没有窗户,采光不好,所以墙地砖选择淡黄色仿理石纹理瓷砖,时尚 温馨,整体洁具也采用白色材系列,打造一个干净,简洁的卫浴空间。

吕娜-保利溪湖淋语129平-美式-厨房.jpg

厨房以白色瓷砖配上白色实木橱柜,搭配白色的吊顶,在色调上给业主营造了一种轻松愉悦的烹饪环境,又便于打理

吕娜-保利溪湖淋语129平-美式-户型图.jpg

案例设计师

林凤装饰设计师

设计师:林凤装饰设计师

从业时间:11年

设计理念:艺术的手法,以人为本

预约设计师

算算你家装修多少钱

报名即享丰厚赠品,品质装修

免费报价
咨询热线:400-656-9909
20190221103704574636.jpg

精品设计案例

20180612134930523248.jpg 服务号二维码.jpg