立即预约 立即预约
免费定制整装家居

免费定制整装家居

一站置家 全程无忧 一省到底
hide.png

当前位置: 首页 > 装修案例效果图 > 中航城

中航城 123平 现代简约风格效果图

收藏
案例风格 现代简约 案例户型 三居 案例面积 123平米
楼盘名称 中航城 设计师 林凤装饰设计师 案例类型 婚房

设计理念:业主为一对年轻夫妇, 上班族,日常里工作非常忙。喜欢简洁、明快、有情调的空间氛围。与业主进行了深度沟通,最终把风格定位在现代简约风格,本案在设计上追求功能与形式完美统一,优雅独特,简洁明快。真正做到轻装修,重装饰,以后期的软装配饰达到业主要求的设计感,总体布局上满足业主的生活需求为宗旨进行设计。

客厅
第1张
第2张
第3张
第4张
第5张
餐厅
第1张
儿童房
第1张
门厅
第1张
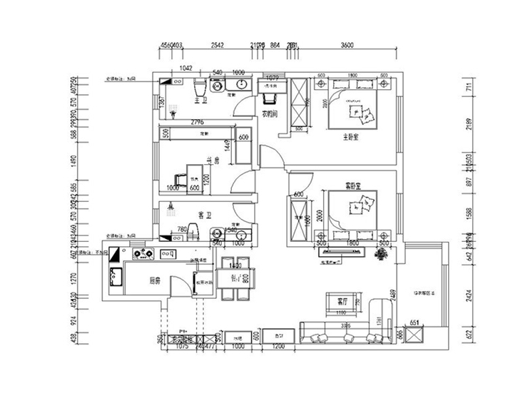
户型图
第1张
  • 案例详情

中航城两河流域- 123平-现代风格-客厅1.jpg 中航城两河流域- 123平-现代风格-客厅2.jpg 中航城两河流域- 123平-现代风格-客厅3.jpg 中航城两河流域- 123平-现代风格-客厅4.jpg 中航城两河流域- 123平-现代风格-客厅5.jpg

现代简约家居设计简洁、干练,让家中呈现一种自然的干净舒适之美。本案地面采用白色带少许理石纹理的大地砖,电视背景墙涂刷上绿色乳胶漆与旁边的蓝绿色沙发凳和沙发上的蓝绿色抱枕遥相呼应,沙发背景墙则采用简单的白色乳胶漆搭配上一副简单的挂画。顶棚采用简单的石膏线条搭配简单的纯色浅绿色窗帘。客厅空间白与绿的完美结合,整体营造出一种干净、自然、清新的氛围。让业主仿佛置身自然之中一样清新惬意。

中航城两河流域- 123平-现代风格-餐厅.jpg

餐厅区域与客厅区域相连,背景同样为绿色。餐桌和餐椅选择黑白搭配,在餐厅的对面还设置了一个小水吧,为业主增加了一个休闲娱乐的好去处,打造了一个实用性和时尚感兼具的餐厅。

中航城两河流域- 123平-现代风格-儿童房.jpg

整个儿童房墙面都铺贴了白底上面有简单卡通图案的壁纸,看起来充满童趣而不凌乱。家具则采用板木结合的床,让卧室轮廓感极强,层次有致。再配上一点毛绒玩具,使整个空间看起来活泼明朗。

中航城两河流域- 123平-现代风格-玄关.jpg 中航城两河流域- 123平-现代风格-户型图.jpg

案例设计师

林凤装饰设计师

设计师:林凤装饰设计师

从业时间:11年

设计理念:艺术的手法,以人为本

预约设计师

算算你家装修多少钱

报名即享丰厚赠品,品质装修

免费报价
咨询热线:400-656-9909
20190221103704574636.jpg

精品设计案例

20180612134930523248.jpg 服务号二维码.jpg