立即预约 立即预约
免费定制整装家居

免费定制整装家居

一站置家 全程无忧 一省到底
hide.png

当前位置: 首页 > 装修案例效果图 > 龙湖紫都城

龙湖紫都城 88平 美式风格效果图

收藏
案例风格 美式 案例户型 二居 案例面积 88平米
楼盘名称 龙湖紫都城 设计师 林凤装饰设计师 案例类型 婚房

设计理念:本案想通过相对简单的硬装造型,配上舒适柔美的美式软装家具,来打造一个静谧舒适、奢华时尚的现代美式风格的家居空间。

  • 案例详情

龙湖紫都城88平-美式-客厅 (2).jpg 龙湖紫都城88平-美式-客厅 (3).jpg 龙湖紫都城88平-美式-客厅 (4).jpg 龙湖紫都城88平-美式-客厅 (6).jpg 龙湖紫都城88平-美式-客厅 (5).jpg 龙湖紫都城88平-美式-客厅 (7).jpg 龙湖紫都城88平-美式-客厅.jpg

客厅将线条硬朗与弧度优美的家具款式放在同个空间中,运用高级灰、米白色色系搭配,来营造馨悦舒适感,素雅却不单调

龙湖紫都城88平-美式-主卧室.jpg

卧室着重以现代美式简约风格的手法设计,利用色彩和线条的巧妙装饰,营造出一种温馨却又有序的空间效果。

龙湖紫都城88平-美式-客厅(8).jpg

卫生间的缺点是没有窗户,采光不好,所以墙地砖选择淡黄色仿理石纹理瓷砖,时尚 温馨,整体洁具也采用白色材系列,打造一个干净,简洁的卫浴空间。

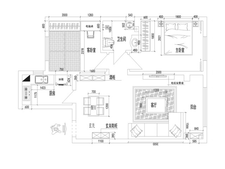
龙湖紫都城88平-美式-平面.jpg

案例设计师

林凤装饰设计师

设计师:林凤装饰设计师

从业时间:11年

设计理念:艺术的手法,以人为本

预约设计师

算算你家装修多少钱

报名即享丰厚赠品,享半价装修

免费报价
咨询热线:400-656-9909
20190221103704574636.jpg

精品设计案例

20180612134930523248.jpg 服务号二维码.jpg