立即预约 立即预约
免费定制整装家居

免费定制整装家居

一站置家 全程无忧 一省到底
hide.png

当前位置: 首页 > 装修案例效果图 > 华润奉天九里

华润奉天九里 148平 新古典风格效果图

收藏
案例风格 新古典 案例户型 三居 案例面积 148平米
楼盘名称 华润奉天九里 设计师 林凤装饰设计师 案例类型 改善性住宅

设计理念:本案以简约新古典风格为主的设计,墙体使用乳胶漆与护墙板的搭配,突出室内稳重大气的感觉。无论是家具还是配饰均以其优雅、唯美的姿态,平和而富有内涵的气韵,描绘出居室主人高雅、贵族之身份。常见的壁炉、水晶宫灯、罗马古柱亦是新古典风格的点睛之笔.

客厅
第1张
餐厅
第1张
卧室
第1张
卫生间
第1张
第2张
厨房
第1张
书房
第1张
过廊
第1张
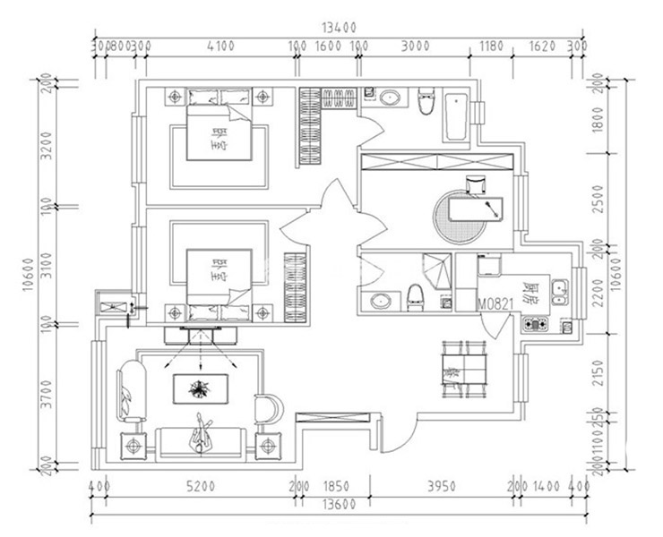
户型图
第1张
  • 案例详情

华润·奉天九里-148平-新古典-客厅 副本.jpg

客厅棚墙面主要运用吊棚来体现区域的划分,背景墙选用石膏线造型,加大了空间的视觉效果,整体的客厅舒适时尚。主体白色糅合,使色彩看起来明亮、大方,使整个空间给人以开放、宽容的非凡气度,让人丝毫不显局促。

华润·奉天九里-148平-新古典-餐厅 副本.JPG

餐厅使用木质与金属材质的餐桌椅以及墙面调色、金属配饰等来体现其空间层次感。中西合璧,使东方的内敛与西方的浪漫相融合,也别有一番尊贵的感觉。

华润·奉天九里-148平-新古典-卧室 副本.JPG

卧室兼备和谐、舒适、浪漫的特点,床头壁纸模仿油画形式,让人们体会到古典的优雅与雍容,。

华润·奉天九里-148平-新古典-卫生间 副本.jpg 华润·奉天九里-148平-新古典-卫生间1 副本.JPG

卫生间主要以黑白灰色调为主,明亮大气。

华润·奉天九里-148平-新古典-厨房 副本.jpg

厨房选用白色橱柜与釉面墙地砖的相结合,使空间大气明亮。

华润·奉天九里-148平-新古典-书房 副本.jpg 华润·奉天九里-148平-新古典-过廊 副本.jpg 华润·奉天九里-148平-新古典-平面图.jpg

案例设计师

林凤装饰设计师

设计师:林凤装饰设计师

从业时间:9年

设计理念:设计回归本位 细节成就品质

预约设计师

算算你家装修多少钱

报名即享丰厚赠品,享半价装修

免费报价
咨询热线:400-656-9909
20190221103704574636.jpg

精品设计案例

20180612134930523248.jpg 服务号二维码.jpg