立即预约 立即预约
免费定制整装家居

免费定制整装家居

一站置家 全程无忧 一省到底
hide.png

当前位置: 首页 > 装修案例效果图 > 保利达翠提湾

保利达翠提湾 100平 现代简约风格效果图

收藏
案例风格 现代简约 案例户型 二居 案例面积 100平米
楼盘名称 保利达翠提湾 设计师 林凤装饰设计师 案例类型 改善性住宅

设计理念:该案设计采用现代设计风格,利用软装与硬装整体搭配的方式,塑造出一个温馨明亮的空间。

客厅
第1张
第2张
第3张
第4张
卧室
第1张
第2张
卫生间
第1张
厨房
第1张
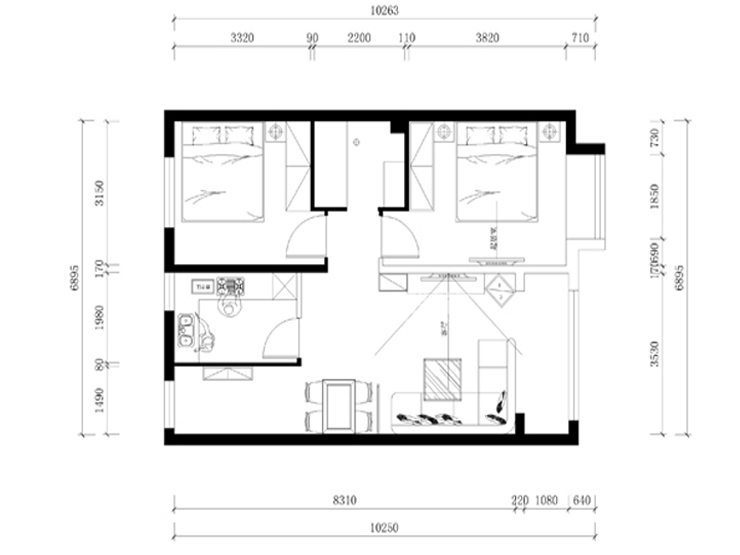
户型图
第1张
  • 案例详情

保利达翠提湾-100-简约风格客厅1.jpg 保利达翠提湾-100-简约风格客厅2.jpg 保利达翠提湾-100-简约风格客厅3.jpg 保利达翠提湾-100-简约风格客厅4.jpg

在家具配置上,采用米白色皮质沙发,皮质的光泽使家具倍感时尚,具有舒适与美观并存的享受。在配饰上,采用明黄色皮质靠垫使色彩有些平淡的沙发鲜活起来,采用黑色镜面茶几,以简洁的造型、完美的细节,营造出时尚前卫的感觉。

保利达翠提湾-100-简约风格卧室.jpg 保利达翠提湾-100平-简约风格-卧室2.jpg

本案的卧室采用了米黄色地板,延续了客厅的暖色调,利用灰色的布艺床,平衡整体的色调,利用蓝色的软包增加了神秘感,明黄色的软装床品同样使整个卧室空间鲜活起来,整体软装与硬装结合的色彩搭配,给您更加舒适的睡眠环境。

保利达翠提湾-100-简约风格卫生间.jpg

本案卫生间延续了暖色调,利用不同层次的黄色使卫生间具有层次感,深色木质的浴室柜突出了业主的沉稳安静的性格,能使业主在教书一天回到家,能更好的放松自己。

保利达翠提湾-100-简约风格厨房.jpg

本方案的厨房为封闭式厨房,厨房采用米灰的地砖,易清洗打理,墙面依旧使用米黄色墙砖,利用香槟色烤漆与白色相间的橱柜,更加的简洁明亮,使业主在做饭之余能更好的放松心情。

保利达翠提湾-100-简约风格平面布局图.jpg

案例设计师

林凤装饰设计师

设计师:林凤装饰设计师

从业时间:6年

设计理念:万物之始,大道至简,衍化至繁

预约设计师

算算你家装修多少钱

报名即享丰厚赠品,享半价装修

免费报价
咨询热线:400-656-9909
20190221103704574636.jpg

精品设计案例

20180612134930523248.jpg 服务号二维码.jpg