立即预约 立即预约
免费定制整装家居

免费定制整装家居

一站置家 全程无忧 一省到底
hide.png

当前位置: 首页 > 装修案例效果图 > 法兰香颂

法兰香颂 85平 港式风格效果图

收藏
案例风格 港式 案例户型 二居 案例面积 85平米
楼盘名称 法兰香颂 设计师 菅垚 案例类型 婚房

设计理念:本案以港式为主设计,港式风格家居多以金属色和线条感营造金碧辉煌的豪华感,简洁而不失时尚这种搭配令客户舒,黑白灰,简单的色调,简约的风格,沉静而不喧闹,这样独具精心养性的港式风格的家居,带给你不一样的生活享受,让你的生活不仅仅是生活,还是一种艺术。

客厅
第1张
第2张
第3张
第4张
第5张
餐厅
第1张
卧室
第1张
第2张
卫生间
第1张
厨房
第1张
户型图
第1张
  • 案例详情

法兰香颂-85平-港式风格-客厅 (1).jpg 法兰香颂-85平-港式风格-客厅 (2).jpg 法兰香颂-85平-港式风格-客厅 (3).jpg 法兰香颂-85平-港式风格-客厅 (4).jpg 法兰香颂-85平-港式风格-客厅 (5).jpg

客厅体现了主人品格,地位,也是交友娱乐的场合,电视背景墙采用理石拼接更好的展示出主人的品位,家具主要以黑和木色为主,华丽又干净的装饰使得整个客厅更加有层次感深受户主喜欢。

法兰香颂-85平-港式风格-餐厅.jpg

餐厅主要以吧台作为用餐处,暖色筒灯更好的区分了用餐空间,整体搭配还是讲究自然简洁的明快感,原木餐桌使家中充满休闲自然的味道

法兰香颂-85平-港式风格-次卧.jpg 法兰香颂-85平-港式风格-主卧.jpg

卧室,作为我们居住的最主要的作用的场所而言,这也是家居的最主要功能,港式风格卧室追求色彩简洁明快,基本以白色为主体色,喜用高级灰为辅助色作点缀,然后再在床边或卧室沙发椅上添置几个木色小柜,典雅温馨感立马充满整个卧室。

法兰香颂-85平-港式风格-卫生间.jpg

卫生间墙地砖选择灰色理石系列的砖给人带来的是一种温馨。整个色系以灰色为主色调。港式卫生间风格舒适,现代,重在生活品质的体现,视觉上既舒适又时尚。

法兰香颂-85平-港式风格-厨房.jpg

厨房主要以理石搭配木门板,颇显出自然风姿,浅色搭配的运用港式厨房讲究功能齐全,多以色泽光亮的金属作为装修材料,让女主人在烹饪过程中会放松身心,享受做饭的乐趣。整个厨房的材质都是易于打理的,平时也不易有划痕。

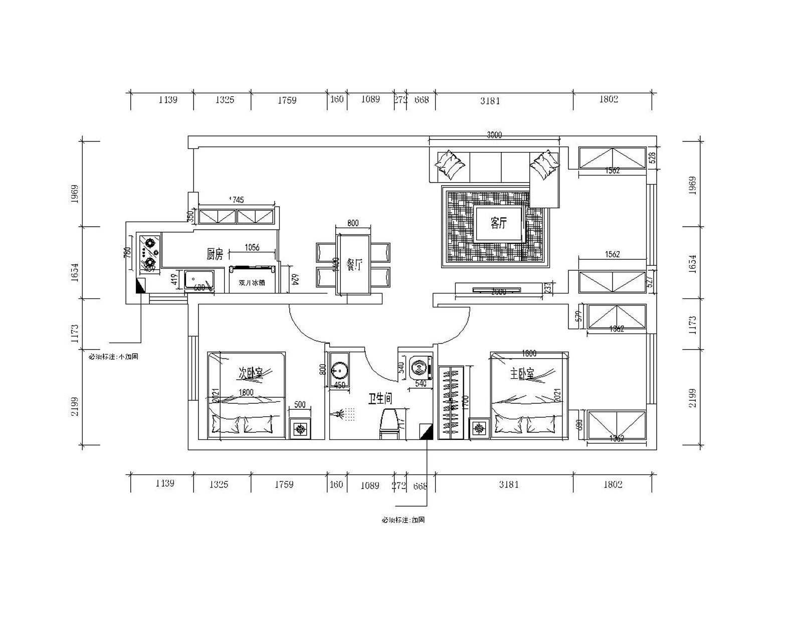
法兰香颂-85平-港式风格-平面图.jpg

案例设计师

菅垚

设计师:菅垚

从业时间:11年

设计理念:没有最好的方案,只有最适合的方案

预约设计师

算算你家装修多少钱

报名即享丰厚赠品,享半价装修

免费报价
咨询热线:400-656-9909
20190221103704574636.jpg

精品设计案例

20180612134930523248.jpg 服务号二维码.jpg