立即预约 立即预约
免费定制整装家居

免费定制整装家居

一站置家 全程无忧 一省到底
hide.png

当前位置: 首页 > 装修案例效果图 > 富海蓝湾半岛

富海蓝湾半岛 95平 现代简约风格效果图

收藏
案例风格 现代简约 案例户型 二居 案例面积 95平米
楼盘名称 富海蓝湾半岛 设计师 沈阳林凤装饰 案例类型 婚房

设计理念:本案的设计主题是白色欧风。室内主要以欧式元素和白色元素巧妙兼柔,端庄、沉稳、大气的欧美精神体现出另一种风貌。布又不拘泥于传统,欧式体现另一种美。

客厅
第1张
第2张
第3张
第4张
餐厅
第1张
第2张
卧室
第1张
卫生间
第1张
第2张
第3张
厨房
第1张
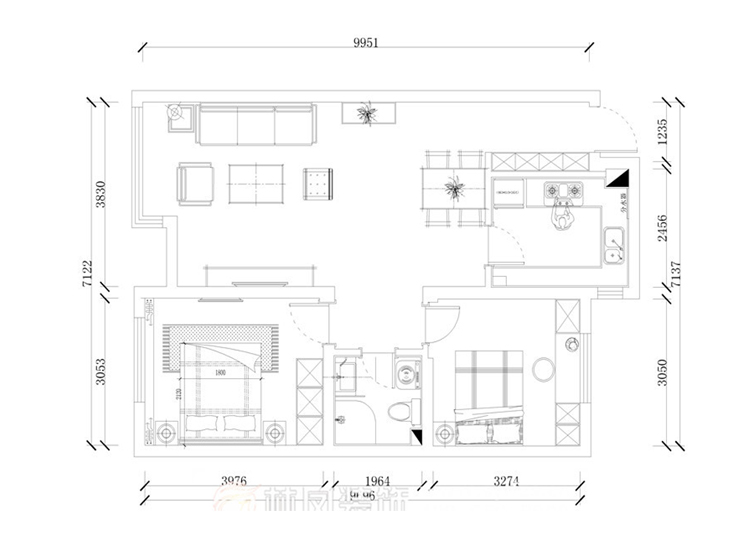
户型图
第1张
  • 案例详情

吕亮-富海兰湾95平-欧式风格-客厅 (2).jpg 吕亮-富海兰湾95平-欧式风格-客厅 (3).jpg 吕亮-富海兰湾95平-欧式风格-客厅 (4).jpg 吕亮-富海兰湾95平-欧式风格-客厅 (1).jpg

客厅电视背景墙采用石膏线条与条镜相结合,浅黄色的家具与沙发后的笔画形成对比吊棚上的筒灯为整个空间增加色彩,圆形吊灯处在茶几上方,交相呼应。

吕亮-富海兰湾95平-欧式风格-餐厅 (1).jpg 吕亮-富海兰湾95平-欧式风格-餐厅 (2).jpg

餐厅空间是由U型造型棚配方形的餐桌,垂下的灯光照亮了墙壁上的壁画,浪漫,而温馨。

卧室.jpg

卧室业主很注重,客厅的简单对比卧室的奢华让空间主次分明别于其它业主的选择,壁纸及地板色彩纹理的选择无疑不体现此空间的重要性,重视休息空间的格调也是慢慢趋于流行的风向标。

吕亮-富海兰湾95平-欧式风格-卫生间 (1).jpg 吕亮-富海兰湾95平-欧式风格-卫生间 (2).jpg 吕亮-富海兰湾95平-欧式风格-卫生间 (3).jpg

卫生间以浅色为主,深色为辅,手盆与淋浴家具摆放合理,使用方便,方便打扫,整洁大方。

吕亮-富海兰湾95平-欧式风格-厨房.jpg

白色的上柜与暖黄的下柜完美的搭配在一起,白色的理石台面更显档次,深色的地砖使整个空间更协调。

吕亮-富海兰湾95平-欧式风格-平面图.jpg

案例设计师

沈阳林凤装饰

设计师:沈阳林凤装饰

从业时间:12年

设计理念:我们不是艺术家,我们只是用艺术的手法来做实用的东西。

预约设计师

算算你家装修多少钱

报名即享丰厚赠品,品质装修

免费报价
咨询热线:400-656-9909
20190221103704574636.jpg

精品设计案例

20180612134930523248.jpg 服务号二维码.jpg