立即预约 立即预约
免费定制整装家居

免费定制整装家居

一站置家 全程无忧 一省到底
hide.png

当前位置: 首页 > 装修案例效果图 > 雅宾利花园

雅宾利花园 137平 混搭风格效果图

收藏
案例风格 混搭 案例户型 三居 案例面积 137平米
楼盘名称 雅宾利花园 设计师 林凤装饰设计师 案例类型 改善性住宅

设计理念:本案以欧式风格为主的设计,业主偏向于欧式风格及现代奢华家具搭配,已欧式装修的整体设计以及简约欧式家具完美装饰,把家居设计提升到了个无比个性化的装修设计

客厅
第1张
第2张
第3张
餐厅
第1张
卧室
第1张
卫生间
第1张
厨房
第1张
过廊
第1张
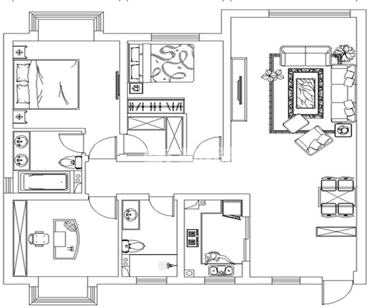
户型图
第1张
  • 案例详情

雅宾利花园-137平-混搭风格-客厅1.jpg 雅宾利花园-137平-混搭风格-客厅3.jpg 雅宾利花园-137平-混搭风格-客厅2.jpg

像这款设计就是将欧式风格的背景墙运用了石膏板造型的完美搭配,简洁的硬包于其中,给整个房间带来了一丝丝奢华之意,欧式的电视墙设计之中又添加了倒角镜片的搭配,两者的搭配放在这里恰到好处。

雅宾利花园-137平-混搭风格-餐厅.jpg

欧式餐厅即西式餐厅风格,渲染,体会异国餐饮情调为目的。餐厅背景墙的镜片能把原来比较小的餐厅无限扩大。

雅宾利花园-137平-混搭风格-卧室.jpg

后期软装方面,选用的配搭灯具、家具等也很考究,既有西式元素。例如天花水晶灯的闪烁效果,配搭上欧式家具、水晶灯、壁灯、挂画、饰品等完美组合,形成极具品位的装饰效果,将欧式风情演绎得淋漓尽致。

雅宾利花园-137平-混搭风格-卫生间.jpg

卫生间整体运用了理石干挂墙面工艺,深色啡网纹及浅色啡网纹理石相结合,把整个卫生间的档次提升了阶段,再搭配上镶嵌式定制手盆,更让卫生间没有任何卫生死角,堪称绝配。

雅宾利花园-137平-混搭风格-厨房.jpg 雅宾利花园-137平-混搭风格-过廊.jpg 雅宾利花园-137平-混搭风格-平面图.jpg

案例设计师

林凤装饰设计师

设计师:林凤装饰设计师

从业时间:6年

设计理念:适合才是最重要的,在适合的同时打造独一无二

预约设计师

算算你家装修多少钱

报名即享丰厚赠品,享半价装修

免费报价
咨询热线:400-656-9909
20190221103704574636.jpg

精品设计案例

20180612134930523248.jpg 服务号二维码.jpg