立即预约 立即预约
免费定制整装家居

免费定制整装家居

一站置家 全程无忧 一省到底
hide.png

当前位置: 首页 > 装修案例效果图 > 碧桂园荟都

碧桂园荟都 125平 新中式风格效果图

收藏
案例风格 新中式 案例户型 三居 案例面积 125平米
楼盘名称 碧桂园荟都 设计师 林凤装饰设计师 案例类型 儿童房

设计理念:本案的客户要求传统风格,民族气节,必须要从整体的设计出发,要求整体的效果,所以在做方案的时候就把整体的效果都考虑进去了!

客厅
第1张
第2张
第3张
第4张
第5张
第6张
餐厅
第1张
卧室
第1张
卫生间
第1张
厨房
第1张
门厅
第1张
过廊
第1张
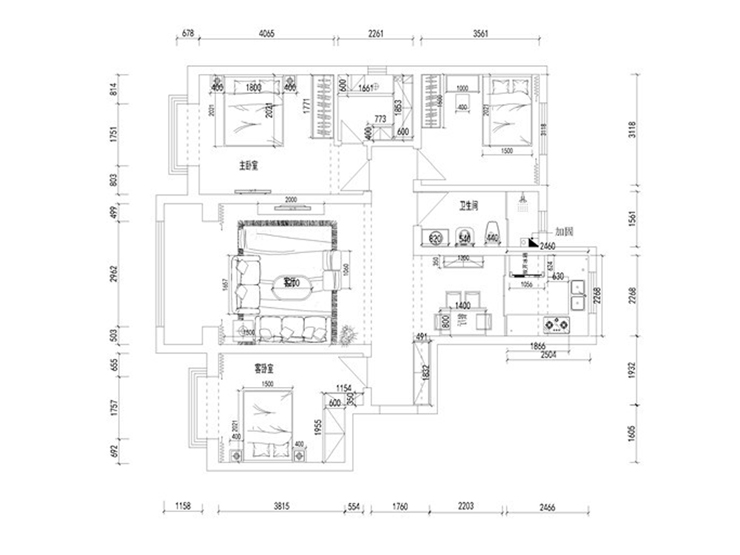
户型图
第1张
  • 案例详情

兰春明-碧桂园都荟-125-新中式卫-客厅 (2).jpg 兰春明-碧桂园都荟-125-新中式卫-客厅 (3).jpg 兰春明-碧桂园都荟-125-新中式卫-客厅4.jpg 兰春明-碧桂园都荟-125-新中式卫-客厅.jpg 兰春明-碧桂园都荟-125-新中式卫-客厅6.jpg 兰春明-碧桂园都荟-125-新中式卫-客厅5.jpg

客厅的吊棚是做简单的直线边棚加上虚光做的造型,造型没有做的太复杂,而且没有做背景墙,只是利用了中式风格的山水壁纸烘托整个风格搭配。设计师从效果和实用两个角度考虑出发,帮客户选择整体的组合家具电视柜子,摆放上古书,即体现了中式风格的书香气息,又多了储物空间,实用又不失效果!

兰春明-碧桂园都荟-125-新中式卫-餐厅.jpg

餐厅的吊顶做了U型的直线边棚的吊顶,很好的把餐桌和吊顶取中融合到一起,效果很有特点,由于家里经常需要做饭,所以利用了中式风格推拉门 ,在餐厅放置了一个博古架收藏一些古玩。使客厅与餐厅达到了一个完美的融合

兰春明-碧桂园都荟-125-新中式-卧室.jpg

卧室比较简洁大方,白色床头上方加上一组合画点缀整个空间,白色的家具床品,与浅色地板显得特别的干净看上去就很舒服!

兰春明-碧桂园都荟-125-新中式卫-生间.jpg

卫生间采用地砖上墙铺贴手法,选用的比较温馨的暖色地砖配合理石台面的洗手柜效果不错,利用了浴屏做到了干湿分离,是整个卫生间显得干净整洁。

兰春明-碧桂园都荟-125-新中式-厨房.jpg

厨房的橱柜选用的是亚格力的材质,由于女主比较喜欢的大红色,配和白色的墙砖效果比较明亮干净。

兰春明-碧桂园都荟-125-新中式卫-门厅.jpg 兰春明-碧桂园都荟-125-新中式卫-过廊.jpg 兰春明-碧桂园都荟-125-新中式卫-平面布局.jpg

案例设计师

林凤装饰设计师

设计师:林凤装饰设计师

从业时间:7年

设计理念:设计源于生活,生活因设计而改变!成就空间和谐,让设计物有所值!让细节缔造完美!

预约设计师

算算你家装修多少钱

报名即享丰厚赠品,品质装修

免费报价
咨询热线:400-656-9909
20190221103704574636.jpg

精品设计案例

20180612134930523248.jpg 服务号二维码.jpg