立即预约 立即预约
免费定制整装家居

免费定制整装家居

一站置家 全程无忧 一省到底
hide.png

当前位置: 首页 > 装修案例效果图 > 金地铂悦

金地铂悦 125平 美式风格效果图

收藏
案例风格 美式 案例户型 三居 案例面积 125平米
楼盘名称 金地铂悦 设计师 林凤装饰设计师 案例类型 改善性住宅

设计理念:本案是以欧式风格为主的设计,采用欧式新古典表现手法,大胆的采用了以护墙板、理石为主的材料,给人简单却不失欧式的优雅的丰富的视觉感

客厅
第1张
第2张
餐厅
第1张
第2张
第3张
卧室
第1张
卫生间
第1张
厨房
第1张
门厅
第1张
第2张
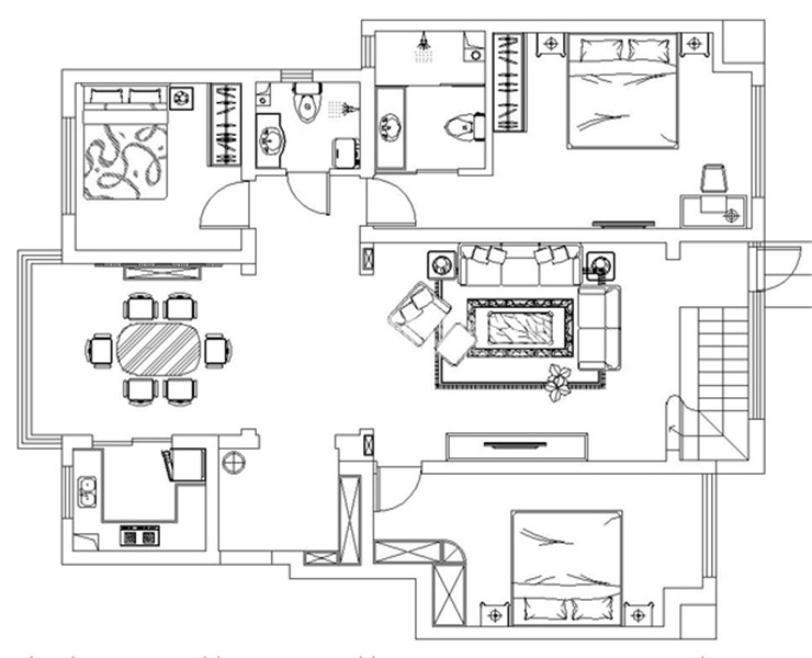
户型图
第1张
  • 案例详情

宏发英树公馆-125平-美式风格-客厅2.JPG 宏发英树公馆-125平-美式风格-客厅1.JPG

像这款设计就是将欧式风格以及美式新古典相搭配,简洁的欧式线条于其中,给整个房间带来了简洁大方的感觉,欧式的电视墙设计之中又添加了护墙板及理石搭配,两者的搭配放在这里恰 到好处。

宏发英树公馆-125平-美式风格-餐厅1.jpg 宏发英树公馆-125平-美式风格-餐厅3.jpg 宏发英树公馆-125平-美式风格-餐厅2.jpg

欧式餐厅即西式餐厅风格,渲染,体会异国餐饮情调为目的。整体定制餐厅地面拼花,再加上购买餐边柜及酒柜的整体搭配,让餐厅更加的简洁大方。

宏发英树公馆-125平-美式风格-卧室.jpg

后期软装方面,选用的配搭灯具、家具等也很考究,既有西式元素。例如天花水晶灯的闪烁效果,配搭上欧式定制家具、水晶灯、挂画、饰品等完美组合,形成极具品位的装饰效果,将奢华的欧式风情演绎得淋漓尽致。

宏发英树公馆-125平-美式风格-卫生间.jpg

卫生间墙地砖选择米黄色理石系列的地砖上墙,给人带来的是一种温馨,浴屏的独特设计分开了空间的干湿分离,定制整体洗手盆造型,把理石台面和坐便后方的水箱相结合,体现出了客户的高大上。

宏发英树公馆-125平-美式风格-厨房.jpg 宏发英树公馆-125平-美式风格-门厅2.JPG 宏发英树公馆-125平-美式风格-门厅1.JPG 宏发英树公馆-125平-美式风格-平面图.jpg

案例设计师

林凤装饰设计师

设计师:林凤装饰设计师

从业时间:6年

设计理念:适合才是最重要的,在适合的同时打造独一无二

预约设计师

算算你家装修多少钱

报名即享丰厚赠品,享半价装修

免费报价
咨询热线:400-656-9909
20190221103704574636.jpg

精品设计案例

20180612134930523248.jpg 服务号二维码.jpg