立即预约 立即预约
免费定制整装家居

免费定制整装家居

一站置家 全程无忧 一省到底
hide.png

当前位置: 首页 > 装修案例效果图 > 东亚国际城

东亚国际城 110平 北欧风格效果图

收藏
案例风格 北欧 案例户型 三居 案例面积 110平米
楼盘名称 东亚国际城 设计师 林凤装饰全案设计师 案例类型 改善性住宅

设计理念:本案是以北欧风格为主的设计方案,本案设计中业主对北欧这种向往自由的生活方式的追求。

客厅
第1张
第2张
餐厅
第1张
第2张
第3张
卧室
第1张
卫生间
第1张
厨房
第1张
门厅
第1张
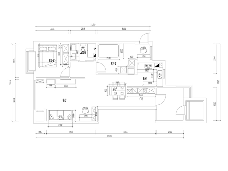
户型图
第1张
  • 案例详情

姜宇-东亚国际城-110-北欧-客厅1.jpg 姜宇-东亚国际城-110-北欧-客厅2.jpg

客厅采用无吊棚设计,采用滑道射灯设计,背景墙采用组合柜设计,可以在电视吊柜展示男主人旅行的纪念品,可以回想每一处的风光。

姜宇-东亚国际城-110-北欧餐厅1.jpg 姜宇-东亚国际城-110-北欧餐厅2.jpg 姜宇-东亚国际城-110-北欧餐厅3.jpg

3.餐厅背景墙面采用文化石铺贴,凸显墙面的质感,和原木餐桌形成呼应。

姜宇-东亚国际城-110-北欧-卧室.jpg

4.由于主卧室的空间比较小,设计比较简单,主要以舒适为主。

姜宇-东亚国际城-110-北欧-卫生间.jpg

卫生间没有窗户,采光比较差,所以墙砖以浅色为主,让空间感觉大。

姜宇-东亚国际城-110-北欧厨房.jpg

厨房采用的开放式设计,厨房空间较小,采用了白色橱柜,让空间感觉明亮。

姜宇-东亚国际城-110-北欧-门厅.jpg 姜宇-东亚国际城-110-北欧-平面图.jpg

案例设计师

林凤装饰全案设计师

设计师:林凤装饰全案设计师

从业时间:12年

设计理念:应时而变,为未来生活而设计

预约设计师

算算你家装修多少钱

报名即享丰厚赠品,品质装修

免费报价
咨询热线:400-656-9909
20190221103704574636.jpg

精品设计案例

20180612134930523248.jpg 服务号二维码.jpg