立即预约 立即预约
免费定制整装家居

免费定制整装家居

一站置家 全程无忧 一省到底
hide.png

当前位置: 首页 > 装修案例效果图 > 东方俪城

东方俪城 140平 现代简约风格效果图

收藏
案例风格 现代简约 案例户型 三居 案例面积 140平米
楼盘名称 东方俪城 设计师 林凤装饰全案设计师 案例类型 改善性住宅

设计理念:本案是以现代风格为主的设计方案,本案设计中业主喜欢简洁明快的家,所以本案为现代简约风格。定义为“淡色的简约风”

客厅
第1张
第2张
第3张
第4张
餐厅
第1张
卧室
第1张
卫生间
第1张
厨房
第1张
门厅
第1张
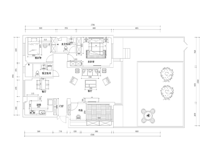
户型图
第1张
  • 案例详情

姜宇-东方俪城-140-现代-客厅2.jpg 姜宇-东方俪城-140-现代-客厅.jpg 姜宇-东方俪城-140-现代-客厅1.jpg 姜宇-东方俪城-140-现代-客厅3.jpg

客厅采用局部吊棚设计,让棚面有层次感,背景墙采用地板上墙设计,可以让电视墙面与其他墙面产生对比。让客厅颜色更加丰富,自然。

姜宇-东方俪城-140-现代-餐厅.jpg

餐厅背景主要已装饰镜片为主,使原本狭小的空间变的开阔起来。

卧室.jpg

由于主卧室的颜色主要以简单明快的色调搭配,轻松自在。

姜宇-东方俪城-140-现代-卫生间.jpg

卫生间有窗户,所以在瓷砖的变化上采用区域分隔的方法,让空间更加有层次。

姜宇-东方俪城-140-现代-厨房.jpg 姜宇-东方俪城-140-现代-门厅.jpg 姜宇-东方俪城-140-现代-平面图.jpg

案例设计师

林凤装饰全案设计师

设计师:林凤装饰全案设计师

从业时间:12年

设计理念:应时而变,为未来生活而设计

预约设计师

算算你家装修多少钱

报名即享丰厚赠品,享半价装修

免费报价
咨询热线:400-656-9909
20190221103704574636.jpg

精品设计案例

20180612134930523248.jpg 服务号二维码.jpg