立即预约 立即预约
免费定制整装家居

免费定制整装家居

一站置家 全程无忧 一省到底
hide.png

当前位置: 首页 > 装修案例效果图 > 天坛小区

天坛小区 140平 现代简约风格效果图

收藏
案例风格 现代简约 案例户型 三居 案例面积 140平米
楼盘名称 天坛小区 设计师 林凤装饰设计师 案例类型 旧房改造

设计理念:现代中式风格的装修风格迎合了年轻人的喜爱,都市忙碌生活,早已经让我们烦腻了花天酒地,灯红酒绿,我们更喜欢的一个安静,祥和,看上去明朗宽敞舒适的家,来消除工作的疲惫,忘却都市的喧闹。这也是现在流行的装修风格之一:现代中式风格。

客厅
第1张
第2张
第3张
第4张
餐厅
第1张
第2张
卫生间
第1张
第2张
厨房
第1张
户型图
第1张
  • 案例详情

天坛小区-现代风格-140平-客厅03.jpg 天坛小区-现代风格-140平-客厅.jpg 天坛小区-现代风格-140平-客厅01.jpg 天坛小区-现代风格-140平-客厅02.jpg

客厅是整个空间的重点,客厅的背景墙我们没有选用复杂的造型.简简单单的壁纸提升空间感.显的格外的通透.有高度的视觉感.

天坛小区-现代风格-140平-餐厅.jpg 天坛小区-现代风格-140平-餐厅02.jpg

餐厅虽然是吃饭的地方,简单的酒柜搭配简单的造型棚让空间更活跃而且还有高雅的气息。

天坛小区-现代风格-140平-卫生间01.jpg 天坛小区-现代风格-140平-卫生间.jpg

卫生间是每个家庭的重中之重,干湿分离.在墙面瓷砖的选择上用米灰色,延续了风格的特点,简结的卫生间提升到高贵的顶点。

天坛小区-现代风格-140平-厨房.jpg

厨房墙面运用了仿理石瓷砖、大气.时尚,也让人看起来放松舒适又大气。

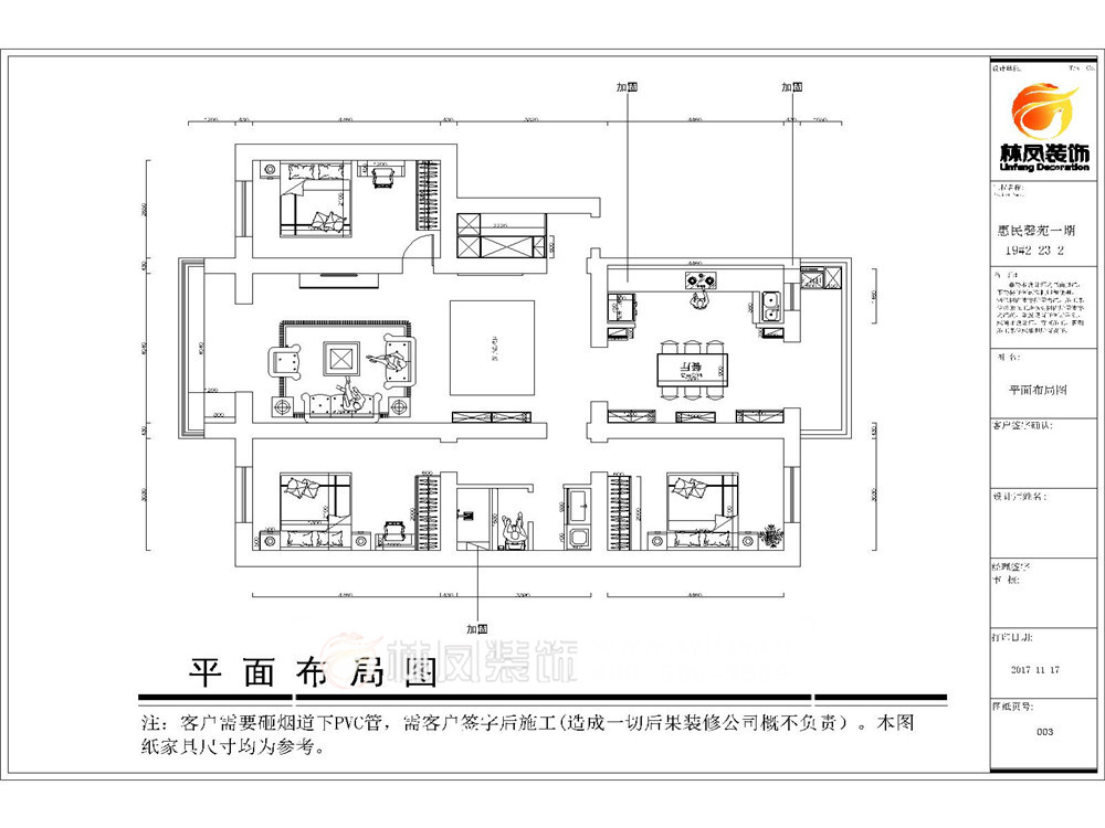
天坛小区-现代风格-140平-户型图.jpg

案例设计师

林凤装饰设计师

设计师:林凤装饰设计师

从业时间:8年

设计理念:设计是一种感受.一种心态

预约设计师

算算你家装修多少钱

报名即享丰厚赠品,享半价装修

免费报价
咨询热线:400-656-9909
20190221103704574636.jpg

精品设计案例

20180612134930523248.jpg 服务号二维码.jpg