立即预约 立即预约
免费定制整装家居

免费定制整装家居

一站置家 全程无忧 一省到底
hide.png

当前位置: 首页 > 装修案例效果图 > 北市家园

北市家园 150平 现代简约风格效果图

收藏
案例风格 现代简约 案例户型 三居 案例面积 150平米
楼盘名称 北市家园 设计师 林凤装饰设计师 案例类型 旧房改造

设计理念:后现代风格是对现代风格中纯理性主义倾向的批判,后现代风格强调建筑及室内装潢应具有历史的延续性,但又不拘泥于传统的逻辑思维方式,探索创新造型手法, 讲究人情味,常在室内设置夸张、变形的柱式和断裂的拱券,或把古典构件的抽象形式以新的手法组合在一起,即采用非传统的混合、叠加、错位、裂变等手法和象 征、隐喻等手段

客厅
第1张
第2张
第3张
第4张
餐厅
第1张
第2张
卫生间
第1张
第2张
厨房
第1张
书房
第1张
第2张
门厅
第1张
过廊
第1张
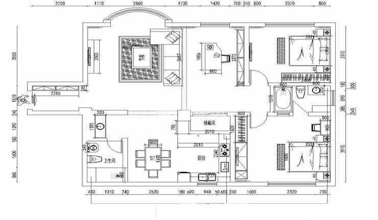
户型图
第1张
  • 案例详情

北市家园-150平-现代风格-客厅04.jpg 北市家园-150平-现代风格-客厅.jpg 北市家园-150平-现代风格-客厅02.jpg 北市家园-150平-现代风格-客厅03.jpg

这个空间使用强烈的黑白对比配色,营造出沙发与现代相结合的后现代风格。富有个性的装饰品和考究的家私实用而有趣,体现出了非常的品味,同样也表现出后现代的最完美的空间感。

北市家园-150平-现代风格-餐厅02.jpg 北市家园-150平-现代风格-餐厅.jpg

黑色餐桌搭配现在不锈钢椅子加上斑马纹餐厅背景,让餐厅显得特别庄重,视觉冲击感特别强,在就餐的时候也别有一般韵味。

北市家园-150平-现代风格-卫生间.jpg 北市家园-150平-现代风格-卫生间01.jpg

卫生间墙地砖选择黑白系列的砖给人带来的是一种高大尚的气息,浴屏的独特设计,干湿分离去运用黑白色比例马赛克与客厅餐厅形成一个整体.生活上也很方便

北市家园-150平-现代风格-厨房.jpg

厨房的设计采用的是开场式的设计方案,很时尚也很大气同样搭配与餐厅背景同样纹理的橱柜.与餐厅相连承上启下大方而大气.

北市家园-150平-现代风格-书房01.jpg 北市家园-150平-现代风格-书房.jpg 北市家园-150平-现代风格-过廊.jpg 北市家园-150平-现代风格-过廊.jpg 北市家园-150平-现代风格-平面图.jpg

案例设计师

林凤装饰设计师

设计师:林凤装饰设计师

从业时间:8年

设计理念:设计是一种感受.一种心态

预约设计师

算算你家装修多少钱

报名即享丰厚赠品,品质装修

免费报价
咨询热线:400-656-9909
20190221103704574636.jpg

精品设计案例

20180612134930523248.jpg 服务号二维码.jpg