立即预约 立即预约
免费定制整装家居

免费定制整装家居

一站置家 全程无忧 一省到底
hide.png

当前位置: 首页 > 装修案例效果图 > 绿地剑桥

绿地剑桥 450平 欧式风格效果图

收藏
案例风格 欧式 案例户型 别墅 案例面积 450平米
楼盘名称 绿地剑桥 设计师 林凤设计师 案例类型 改善性住宅

设计理念:建筑面积虽然330平,但是因外建露台和扩充房间。实际面积可以达到450平,考虑到房主的要求,整体设计定义为现代欧式,搭配古典家具来提升空间升华。同时客厅以挑空的形式来营造欧式风格的建筑的特点,同时搭配上罗马柱以配合整体风格的延伸性。

客厅
第1张
第2张
第3张
餐厅
第1张
卧室
第1张
卫生间
第1张
厨房
第1张
过廊
第1张
第2张
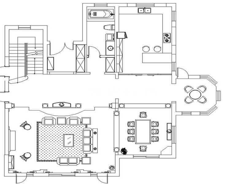
户型图
第1张
  • 案例详情

绿地剑桥-450平-欧式-客厅4.jpg 绿地剑桥-450平-欧式-客厅2.jpg 绿地剑桥-450平-欧式-客厅3.jpg

客厅进行了整体挑空的设计。整体的客厅挑空带来了空间感资的飞跃。不仅宽敞明恋而且欧式的品味个性十足。在客厅中设计了欧式壁炉的设计,这一点上牢牢的抓住了整体风格的走向。同时业主也会觉得品味上的升华。在家具配设上选择偏向古典欧式家具进行搭配。在配饰上局部墙面搭配了中式的陶瓷展品。这也让整体空间亮点十足。

绿地剑桥-450平-欧式-餐厅.jpg

餐厅进行了重新的安排把整体墙面进行了拆除,餐厅和客厅进行了整体的贯穿。但是为了进行区分在餐厅的入口处有进行了两侧对应的罗马柱设计使得餐厅和客厅相互连接相互兼容。

绿地剑桥-450平-欧式-卧室.jpg

卧室有着单独扩建的露台。在卧室与阳台用玻璃门进行了间隔。卧室内以浅色卷草纹壁纸,棚面做了二级吊棚使得整体棚面层次感十足。因主卧室带有独立衣帽间。所以在床边也设计边柜的形式来储放日常用品。

绿地剑桥-450平-欧式-卫生间.jpg

卫生间整体墙面以仿理石纹理墙砖进行铺贴。地面以两个颜色瓷砖进行了拼贴同时还做了一圈波打线为整个公共空间地面的相呼应。同时设计了独立的浴缸设计。不仅可以享受的泡澡乐趣,同时也是盥洗大件物品理想的盥洗池。

绿地剑桥-450平-欧式-厨房.jpg

整体厨房浅色墙砖铺贴地面以拼地心的方式向外扩散。搭配上实木的橱柜尽显欧式奢华的气质。因厨房空间绝对够大设计了一个吧台的设计。休闲是可以品品红酒绝对又有一番别样的风情。

绿地剑桥-450平-欧式-过廊1.jpg 绿地剑桥-450平-欧式-过廊2.jpg 绿地剑桥-450平-欧式-平面.jpg

案例设计师

林凤设计师

设计师:林凤设计师

从业时间:10年

设计理念:

预约设计师

算算你家装修多少钱

报名即享丰厚赠品,品质装修

免费报价
咨询热线:400-656-9909
20190221103704574636.jpg

精品设计案例

20180612134930523248.jpg 服务号二维码.jpg