立即预约 立即预约
免费定制整装家居

免费定制整装家居

一站置家 全程无忧 一省到底
hide.png

当前位置: 首页 > 装修案例效果图 > 旭辉御府

旭辉御府 58平 美式风格效果图

收藏
案例风格 美式 案例户型 二居 案例面积 58平米
楼盘名称 旭辉御府 设计师 林凤设计师 案例类型 婚房

设计理念:本案为美式的设计,为了不影响本来就很小的空间感,棚面没有做大面积的造型。

客厅
第1张
第2张
第3张
第4张
餐厅
第1张
卧室
第1张
卫生间
第1张
第2张
厨房
第1张
过廊
第1张
第2张
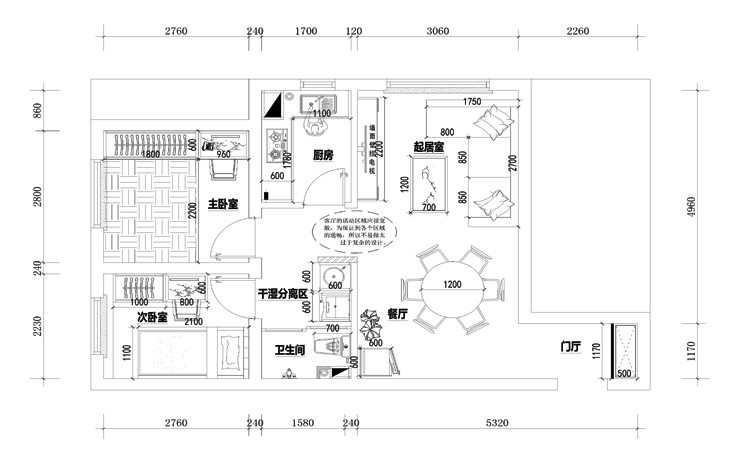
户型图
第1张
  • 案例详情

旭辉御府-58平-简美风格-头图.jpg 旭辉御府-58平-简美风格-客厅 (3).jpg 旭辉御府-58平-简美风格-客厅 (2).jpg 旭辉御府-58平-简美风格-客厅.jpg

客厅采用皮布结合沙发搭配有时尚感觉,颜色的运用,高端中不失浪漫的气息,简约美式的起居室主要需要突出的就是年代感,所以材质纹理与颜色比较挑剔一些。

旭辉御府-58平-简美风格-餐厅.jpg

简约美式餐厅主要采用实木圆餐桌,实木的选择比较沉稳,家里客人比较多,满足了家人日常使用。

旭辉御府-58平-简美风格-卧室.jpg

卧室考虑储藏空间的利用,将衣柜和书柜做成整体,墙面采用白色乳胶漆的卧室渲染出来安静而温馨。

旭辉御府-58平-简美风格-干湿分离.jpg 旭辉御府-58平-简美风格-卫生间.jpg

卫生间采用仿古AB砖的做法,让整个空间放大,淋浴区的花砖处理也显得更加有情调。

旭辉御府-58平-简美风格-厨房.jpg

厨房采用的是封闭厨房,利用空间的同时,也为厨房多了些许层次感。不一样色彩的相互搭配,简单的线条材质,橱柜反色出的光泽,使得整个空间更显。亮堂。

旭辉御府-58平-简美风格-过廊1.jpg 旭辉御府-58平-简美风格-过廊.jpg 旭辉御府-58平-简美风格-平面图.jpg

案例设计师

林凤设计师

设计师:林凤设计师

从业时间:9年

设计理念:想客户之所想,急客户之所急,永远吧客户的利益放在自己的利益之上。

预约设计师

算算你家装修多少钱

报名即享丰厚赠品,品质装修

免费报价
咨询热线:400-656-9909
20190221103704574636.jpg

精品设计案例

20180612134930523248.jpg 服务号二维码.jpg