立即预约 立即预约
免费定制整装家居

免费定制整装家居

一站置家 全程无忧 一省到底
hide.png

当前位置: 首页 > 装修案例效果图 > 龙湖唐宁ONE

龙湖唐宁ONE 112平 现代简约风格效果图

收藏
案例风格 现代简约 案例户型 三居 案例面积 112平米
楼盘名称 龙湖唐宁ONE 设计师 林凤设计师 案例类型 改善性住宅

设计理念:现代简约风格是以简约为主的装修风格.抛弃掉过去复杂交错的线条以及复杂多变的造型。整体要给人一种清新自然随性的感觉。都市的繁华往往也会给大家带来工作上的疲惫。在工作之余的家庭就更加不必需要太多的复杂。要让业主知道家是简单清新的避风港。

客厅
第1张
第2张
第3张
第4张
第5张
第6张
卧室
第1张
卫生间
第1张
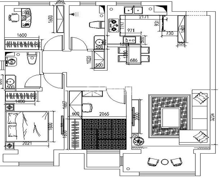
户型图
第1张
  • 案例详情

龙湖唐宁ONE-112平-现代简约-客厅2.jpg 龙湖唐宁ONE-112平-现代简约-客厅4.jpg 龙湖唐宁ONE-112平-现代简约-客厅5.jpg 龙湖唐宁ONE-112平-现代简约-客厅3.jpg 龙湖唐宁ONE-112平-现代简约-客厅6.jpg 龙湖唐宁ONE-112平-现代简约-客厅1.jpg

最为整体公共空间最为重要的一个区域。布艺的沙发搭配上独特砖墙形式的背景墙简约而不简单。整体空间搭配浅灰色系的壁纸更加可以凸显棚面造型棚线。天地独树一帜的不同。

龙湖唐宁ONE-112平-现代简约-主卧室.jpg

主卧室有飘窗位置是整体空间的一大亮点所在。右侧的搁架和飘窗柜整体定制融为一体。不仅空间利用得到最大化同时也是设计亮点。整体主卧室使用了中色系壁纸。让主卧室成为一个最好的休息空间。

龙湖唐宁ONE-112平-现代简约-卫生间.jpg

主卫生间整体使用仿古瓷砖 把每个区域都做了独特划分。虽然主卫生间空间不大。但是通过瓷砖的拼贴造型让主卫生间也有独立的空间感。

龙湖唐宁ONE-112平-现代简约-平面.jpg

案例设计师

林凤设计师

设计师:林凤设计师

从业时间:10年

设计理念:

预约设计师

算算你家装修多少钱

报名即享丰厚赠品,享半价装修

免费报价
咨询热线:400-656-9909
20190221103704574636.jpg

精品设计案例

20180612134930523248.jpg 服务号二维码.jpg