立即预约 立即预约
免费定制整装家居

免费定制整装家居

一站置家 全程无忧 一省到底
hide.png

当前位置: 首页 > 装修案例效果图 > 中海寰宇天成

中海寰宇天成 89平 现代简约风格效果图

收藏
案例风格 现代简约 案例户型 二居 案例面积 89平米
楼盘名称 中海寰宇天成 设计师 林凤装饰设计师 案例类型 儿童房

设计理念:现代风格是现在比较流行的一种风格,利用现代的家具,装饰搭配,显示出美感。现代风格,追求时尚和潮流,注重功能的合理和实用性。以最简洁的造型和搭配,展现出最舒适,和谐的空间。

客厅
第1张
第2张
第3张
餐厅
第1张
第2张
卧室
第1张
第2张
厨房
第1张
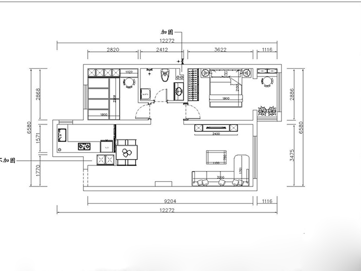
户型图
第1张
  • 案例详情

设计九部-缐晓楠-中海寰宇天成-现代-89-首图.jpg 设计九部-缐晓楠-中海寰宇天成-现代-89-客厅.jpg 设计九部-缐晓楠-中海寰宇天成-现代-89-客厅01.jpg

进入房子首先注意到的就是客厅空间,楼层较高,采光不会很差,所以客厅会很宽敞明亮。蓝色壁纸增加了客厅的透视感,明亮大气。搭配色彩艳丽的沙发,丰富了客厅的颜色,让空间在颜色的搭配上不会显得单调。在给人的视觉上,也会很舒服。

设计九部-缐晓楠-中海寰宇天成-现代-89-餐厅.jpg 设计九部-缐晓楠-中海寰宇天成-现代-89-餐厅01.jpg

餐厅做一个餐边柜,搭配照片墙,对比明显,空间感更强烈。

设计九部-缐晓楠-中海寰宇天成-现代-89-卧室.jpg 设计九部-缐晓楠-中海寰宇天成-现代-89-卧室02.jpg

卧室做了简单的背景墙,蓝条壁纸线条感十足的,凸显现代的感觉,整暖黄色会给人温馨,舒适的感觉,让业主在劳累了一天之后心情放松。

设计九部-缐晓楠-中海寰宇天成-现代-89-厨房.jpg

厨房本身是封闭的,橱柜采用板式橱柜,冰箱放在厨房内使用更方便,让整个空间凸显现代感,明亮。

设计九部-缐晓楠-中海寰宇天成-现代-89-平面图.jpg

案例设计师

林凤装饰设计师

设计师:林凤装饰设计师

从业时间:5年

设计理念:求新,求变,求不同。

预约设计师

算算你家装修多少钱

报名即享丰厚赠品,品质装修

免费报价
咨询热线:400-656-9909
20190221103704574636.jpg

精品设计案例

20180612134930523248.jpg 服务号二维码.jpg