立即预约 立即预约
免费定制整装家居

免费定制整装家居

一站置家 全程无忧 一省到底
hide.png

当前位置: 首页 > 装修案例效果图 > 中海和平之门

中海和平之门 84平 地中海风格效果图

收藏
案例风格 地中海 案例户型 二居 案例面积 84平米
楼盘名称 中海和平之门 设计师 林凤装饰设计师 案例类型 婚房

设计理念:本案地中海风格为主,整体以天蓝色和白色为主,丰富的颜色搭配,及空间规划为最大亮点

客厅
第1张
第2张
第3张
第4张
餐厅
第1张
第2张
卧室
第1张
卫生间
第1张
厨房
第1张
门厅
第1张
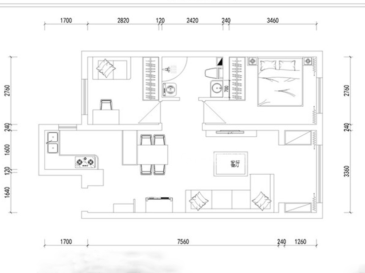
户型图
第1张
  • 案例详情

设计九部-缐晓楠-中海和平之门-84-地中海风格-背景.jpg 设计九部-缐晓楠-中海和平之门-84-地中海风格-客厅.jpg 设计九部-缐晓楠-中海和平之门-84-地中海风格-客厅1.jpg 设计九部-缐晓楠-中海和平之门-84-地中海风格-背景1.jpg

客厅运用直工艺石膏线为主,没有过多的造型,摒弃传统掉棚的手法,搭配搓旧吊灯,凸显客厅风格效果。白蓝沙发的搭配与墙面相互呼应,时尚又不是文化韵味。

设计九部-缐晓楠-中海和平之门-84-地中海风格-餐厅.jpg 设计九部-缐晓楠-中海和平之门-84-地中海风格-玄关.jpg

吧台与餐桌的结合给本套方案创造了亮点,及满足了女业主对吧台的喜爱,又满足了男业主对传统文化的习性。非常得到男女业主的认可。

设计九部-缐晓楠-中海和平之门-84-地中海风格-卧室.jpg

整体壁纸为主.波浪式掉棚搭配.使得整个卧室既温馨又时尚,又不与整体设计脱轨.起到整齐划一.

设计九部-缐晓楠-中海和平之门-84-地中海风格-卫生间.jpg

天蓝色墙砖已经仿马赛克地砖,使主任一进到卫生间就有一种身处海边的感受。

设计九部-缐晓楠-中海和平之门-84-地中海风格-厨房.jpg

敞开式厨房的设计增大了进屋后对空间的视觉效果。仿古砖与白色吸塑橱柜的搭配,新颖美观。

设计九部-缐晓楠-中海和平之门-84-地中海风格-玄关.jpg 设计九部-缐晓楠-中海和平之门-84-地中海风格-平面.jpg

案例设计师

林凤装饰设计师

设计师:林凤装饰设计师

从业时间:5年

设计理念:求新,求变,求不同。

预约设计师

算算你家装修多少钱

报名即享丰厚赠品,享半价装修

免费报价
咨询热线:400-656-9909
20190221103704574636.jpg

精品设计案例

20180612134930523248.jpg 服务号二维码.jpg