立即预约 立即预约
免费定制整装家居

免费定制整装家居

一站置家 全程无忧 一省到底
hide.png

当前位置: 首页 > 装修案例效果图 > 国瑞城

国瑞城 124平 新中式风格效果图

收藏
案例风格 新中式 案例户型 三居 案例面积 124平米
楼盘名称 国瑞城 设计师 林凤设计师 案例类型 改善性住宅

设计理念:本案是以中国古典元素和现代风格的完美结合,中性,时尚。既包含了中式元素的对称美,同时也兼容了现代文化气息。设计并不有多余的复杂,而且整体空间既温馨又舒适。给业主带来家的温馨。

客厅
第1张
第2张
第3张
第4张
餐厅
第1张
第2张
卧室
第1张
卫生间
第1张
厨房
第1张
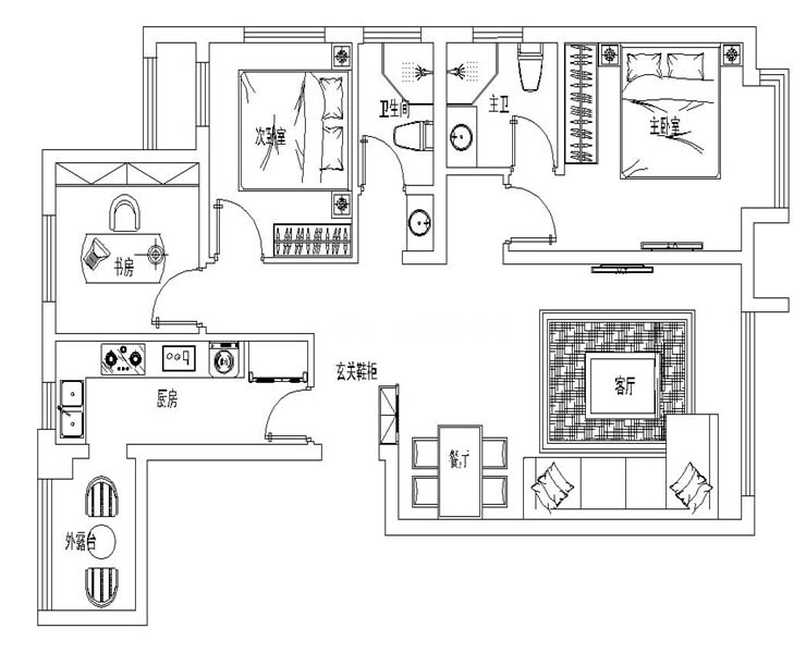
户型图
第1张
  • 案例详情

国瑞城-124平-新中式-客厅3.jpg 国瑞城-124平-新中式-客厅1.jpg 国瑞城-124平-新中式-客厅.jpg 国瑞城-124平-新中式-客厅2.jpg

新中式的客厅不仅要有中式的沉稳,更要又现代文化的特色。客厅背景墙采用了中式的对称设计并加以实木为主原料。同时配饰植物也以中国传统的竹为搭配。

国瑞城-124平-新中式-餐厅3.jpg 国瑞城-124平-新中式-餐厅2.jpg

中式餐厅不仅要有中式的实木餐桌而且现代的吊棚天花更可以是业主体会到新中的带来的舒适感。

国瑞城-124平-新中式-卧室.jpg

做为私密空间卧室不仅是为了给业主带来优质的睡眠为前提,同时还要让业主感觉到中国文化的背景带来的中式韵味。

国瑞城-124平-新中式-卫生间.jpg

卫生间以浅色墙砖为主,同事搭配了拼花地砖。浴屏的独特设计不仅节省空间同时使卫生间干湿分离更为业主带来方便。

国瑞城-124平-新中式-厨房.jpg

厨房以仿古墙砖搭配实木橱柜。颇显中式带来的韵味。浅色墙砖搭配深色橱柜。层次感更为强烈。让房主人烹饪的同事也带来强大的视觉冲击。

国瑞城-124平-新中式-平面图.jpg

案例设计师

林凤设计师

设计师:林凤设计师

从业时间:10年

设计理念:

预约设计师

算算你家装修多少钱

报名即享丰厚赠品,享半价装修

免费报价
咨询热线:400-656-9909
20190221103704574636.jpg

精品设计案例

20180612134930523248.jpg 服务号二维码.jpg