立即预约 立即预约
免费定制整装家居

免费定制整装家居

一站置家 全程无忧 一省到底
hide.png

当前位置: 首页 > 装修案例效果图 > 中粮隆玺世家

中粮隆玺世家 123平 新中式风格效果图

收藏
案例风格 新中式 案例户型 三居 案例面积 123平米
楼盘名称 中粮隆玺世家 设计师 林凤装饰设计师 案例类型 改善性住宅

设计理念:本案以现代中式风格为主的设计,营造的是极富中国浪漫情调的生活空间,红木、青花瓷、紫砂茶壶以及一些红木工艺品等都体现了浓郁的东方之美。

客厅
第1张
第2张
第3张
餐厅
第1张
第2张
卧室
第1张
卫生间
第1张
厨房
第1张
门厅
第1张
第2张
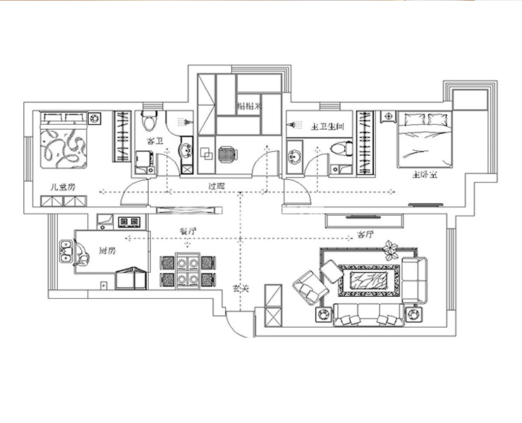
户型图
第1张
  • 案例详情

中粮隆玺-123平-新中式风格-客厅3.jpg 中粮隆玺-123平-新中式风格-客厅2.jpg 中粮隆玺-123平-新中式风格-客厅.jpg

客厅是传统与现代居室风格的碰撞,设计师以现代的装饰手法和家具,结合古典中式的装饰元素,来呈现亦古亦今的空间氛围。中式风格的古色古香与现代风格的简单素雅自然衔接,使生活的实用性和对传统文化的追求同时得到了满足。影视墙的造型则以实木护墙板为主,却在醒目位置饰以茶色钢条做修饰,这种绝妙的组合给人以强烈的视觉意志力,成为时尚与古典的柔媚结合。

中粮隆玺-123平-新中式风格-餐厅.jpg 中粮隆玺-123平-新中式风格-餐厅2.jpg

新中式风格非常讲究空间的层次感,在需要隔绝视线的地方,则使用中式的屏风或窗棂、中式木门、简约化的中式“博古架”隔断柜,通过这种新的分隔方式,单元式住宅就展现出中式家居的层次之美。

中粮隆玺-123平-新中式风格-卧室.jpg

现代中式风格的卧室有着奢华富有温馨感,床头背景采用了软包及实木线做为装饰,搭配整体墙面咖色壁纸,让整体效果更加富有协调性。

中粮隆玺-123平-新中式风格-卫生间.jpg

卫生间墙地砖选择米黄色系列的仿古砖给人带来的是一种温馨,浴屏的独特设计分开了空间的干湿分离,定制的洗漱柜不会让洗手间出现任何的卫生死角。。

中粮隆玺-123平-新中式风格-厨房.jpg 中粮隆玺-123平-新中式风格-玄关.jpg 中粮隆玺-123平-新中式风格-玄关2.jpg 中粮隆玺-123平-新中式风格-户型图.jpg

案例设计师

林凤装饰设计师

设计师:林凤装饰设计师

从业时间:11年

设计理念:设计来源于生活。

预约设计师

算算你家装修多少钱

报名即享丰厚赠品,享半价装修

免费报价
咨询热线:400-656-9909
20190221103704574636.jpg

精品设计案例

20180612134930523248.jpg 服务号二维码.jpg