立即预约 立即预约
免费定制整装家居

免费定制整装家居

一站置家 全程无忧 一省到底
hide.png

当前位置: 首页 > 装修案例效果图 > 龙之梦.馨园

龙之梦.馨园 66平 现代简约风格效果图

收藏
案例风格 现代简约 案例户型 二居 案例面积 66平米
楼盘名称 龙之梦.馨园 设计师 林凤设计师 案例类型 婚房

设计理念:一家三口居住,刚需房,没什么特殊需求,很自然的推荐了现代简约风格来满足客户的居住需要!

客厅
第1张
第2张
餐厅
第1张
卧室
第1张
第2张
厨房
第1张
第2张
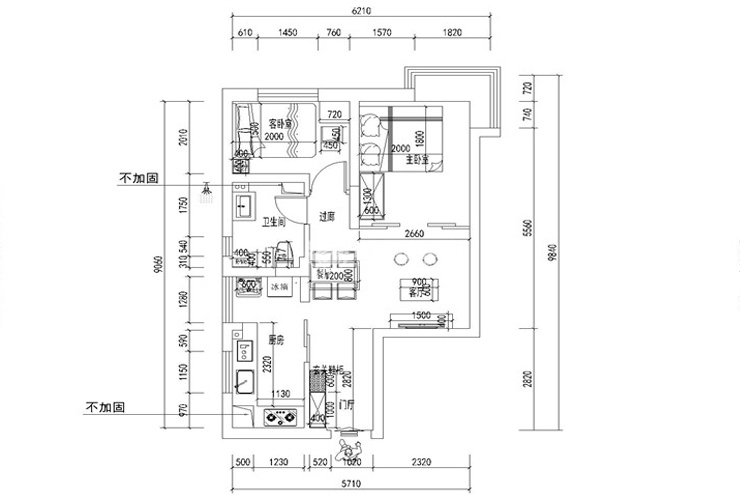
户型图
第1张
  • 案例详情

龙之梦。馨园-66平-现代风格-客厅.jpg 龙之梦。馨园-66平-现代风格-背景墙.jpg 龙之梦。馨园-66平-现代风格-餐厅_.jpg

餐厅空间很理想,摆放位置很符合设计要求4,卧室说明:卧室空间没有什么大的改动。

龙之梦。馨园-66平-现代风格-卧室 (2).jpg 龙之梦。馨园-66平-现代风格-卧室.jpg 龙之梦。馨园-66平-现代风格-厨房.jpg 龙之梦。馨园-66平-现代风格-厨房.jpg

厨房改动较大 ,厨房做的拉门.为了让空间采光更好.铺贴淡黄色墙砖.清新.自然.柔和。

龙之梦66平 平面图-Model.jpg

案例设计师

林凤设计师

设计师:林凤设计师

从业时间:3年

设计理念:设计是一种感受、一种心态、一种舒适的、开心的生活方式。

预约设计师

算算你家装修多少钱

报名即享丰厚赠品,品质装修

免费报价
咨询热线:400-656-9909
20190221103704574636.jpg

精品设计案例

20180612134930523248.jpg 服务号二维码.jpg