立即预约 立即预约
免费定制整装家居

免费定制整装家居

一站置家 全程无忧 一省到底
hide.png

当前位置: 首页 > 装修案例效果图 > 工业大学教师公寓

工业大学教师公寓 147平 欧式风格效果图

收藏
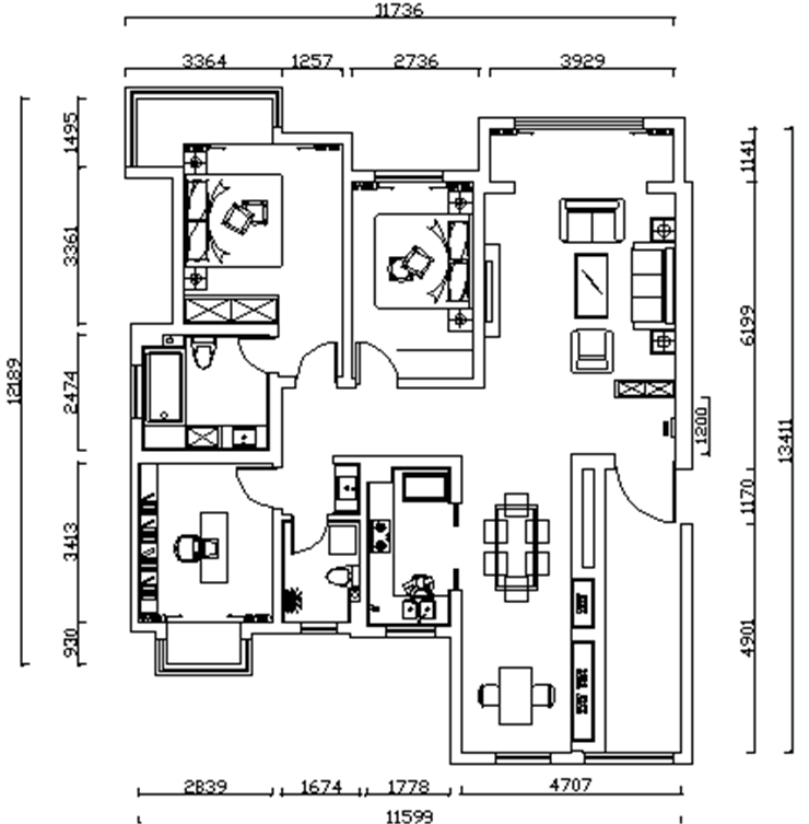
案例风格 欧式 案例户型 三居 案例面积 147平米
楼盘名称 工业大学教师公寓 设计师 林凤装饰设计师 案例类型 婚房

设计理念: 简欧风格是比较经典的风格之一,它从欧式风格演化而来。去掉了欧式风格的繁琐的线条,只保留欧式风格经典的线条组合,,注重功能的合理和实用性。以最简洁的造型和搭配,展现出最舒适,和谐的空间。

客厅
第1张
第2张
餐厅
第1张
第2张
卫生间
第1张
休闲区
第1张
过廊
第1张
第2张
户型图
第1张
  • 案例详情

工业大学教师公寓-147平-简欧风格-客厅1.jpg 工业大学教师公寓-147平-简欧风格-客厅2.jpg

进入房子首先注意到的就是客厅空间,楼层较高,采光不会很差,所以客厅会很宽敞明亮。金色的大马士革壁纸,明亮大气。搭配硬包的电视背景墙,增添一丝现代气息,让空间不显得沉闷。在视觉上也会很舒服。

工业大学教师公寓-147平-简欧风格-餐厅.jpg 工业大学教师公寓-147平-简欧风格-餐厅2.jpg

酒柜是欧式风格必不可少的元素,由于餐厅位置比较宽敞,所以摆放了6人餐桌,亲戚朋友来了也有位置,配上一副欧式元素的画,突显简欧风格的特点。

工业大学教师公寓-147平-简欧风格-卫生间.jpg 工业大学教师公寓-147平-简欧风格-干湿分离.jpg 工业大学教师公寓-147平-简欧风格-过廊2.jpg 工业大学教师公寓-147平-简欧风格-过廊.jpg 工业大学教师公寓-147平-简欧风格-户型图.jpg

案例设计师

林凤装饰设计师

设计师:林凤装饰设计师

从业时间:5年

设计理念:求新,求变,求不同。

预约设计师

算算你家装修多少钱

报名即享丰厚赠品,享半价装修

免费报价
咨询热线:400-656-9909
20190221103704574636.jpg

精品设计案例

20180612134930523248.jpg 服务号二维码.jpg