立即预约 立即预约
免费定制整装家居

免费定制整装家居

一站置家 全程无忧 一省到底
hide.png

当前位置: 首页 > 装修案例效果图 > 中航城

中航城 140平 现代简约风格效果图

收藏
案例风格 现代简约 案例户型 三居 案例面积 140平米
楼盘名称 中航城 设计师 林凤装饰设计师 案例类型 改善性住宅

设计理念:本方案简欧风格为主的设计,采用欧式新古典表现手法,大胆的采用了墙面颜色和装饰背景墙作为搭配,给人一种奢华而富有文化的整体效果。

客厅
第1张
第2张
第3张
餐厅
第1张
第2张
卧室
第1张
卫生间
第1张
门厅
第1张
过廊
第1张
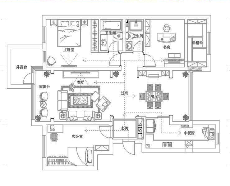
户型图
第1张
  • 案例详情

中航两河流域-140平-欧式风格-客厅3.jpg 中航两河流域-140平-欧式风格-客厅.jpg 中航两河流域-140平-欧式风格-客厅2.jpg

像这款设计就是将欧式风格以及新古典相搭配,简洁的欧式线条于其中,给整个房间带来了豪华的感觉,简欧的电视墙设计之中又添加了石膏线的造型及卡其色色壁纸搭配,两者的搭配放在一起真是恰到好处。

中航两河流域-140平-欧式风格-餐厅2.jpg 中航两河流域-140平-欧式风格-餐厅.jpg

欧式餐厅即西式餐厅风格,渲染,体会异国餐饮情调为目的。嵌入式酒柜的设计把原有的餐厅缺陷规避掉形成归方效果,而背景墙则选择了简单石膏线做效果,让餐厅更加的简洁大方。

中航两河流域-140平-欧式风格-卧室.jpg

繁花似锦的壁纸,奢华的护墙板造型以及玫瑰金钢条搭配,敦厚精美的床做以搭配,都能带出欧式风格特有的质感。卧室的整体感觉端庄优雅,仿佛将人带入十八世纪保守意大利贵族的舞会中,每一处都是那么光鲜照人,无一处不为之惊叹不已,多么豪华,多么高贵啊!

中航两河流域-140平-欧式风格-卫生间.jpg

卫生间墙地砖选择浅色理石系列的地砖上墙,运用玻璃浴屏制作干湿分离,定制整体理石洗手盆造型,能让卫生间更加的奢华上档次。,

中航两河流域-140平-欧式风格-玄关.jpg 中航两河流域-140平-欧式风格-过廊.jpg 中航两河流域-140平-欧式风格-户型图.jpg

案例设计师

林凤装饰设计师

设计师:林凤装饰设计师

从业时间:11年

设计理念:设计来源于生活。

预约设计师

算算你家装修多少钱

报名即享丰厚赠品,享半价装修

免费报价
咨询热线:400-656-9909
20190221103704574636.jpg

精品设计案例

20180612134930523248.jpg 服务号二维码.jpg