立即预约 立即预约
免费定制整装家居

免费定制整装家居

一站置家 全程无忧 一省到底
hide.png

当前位置: 首页 > 装修案例效果图 > 恒润雅筑

恒润雅筑 104平 现代简约风格效果图

收藏
案例风格 现代简约 案例户型 二居 案例面积 104平米
楼盘名称 恒润雅筑 设计师 林凤装饰设计师 案例类型 改善性住宅

设计理念:本案以现代风格为主的设计,运用了硬包及烤漆镜片结构来围绕着整体装修风格, 业主偏向于现代奢华感觉,已舒适家具和现代装修相结合,以唯美、成熟、稳重为前提的设计方案。

客厅
第1张
第2张
第3张
第4张
餐厅
第1张
第2张
卧室
第1张
卫生间
第1张
厨房
第1张
过廊
第1张
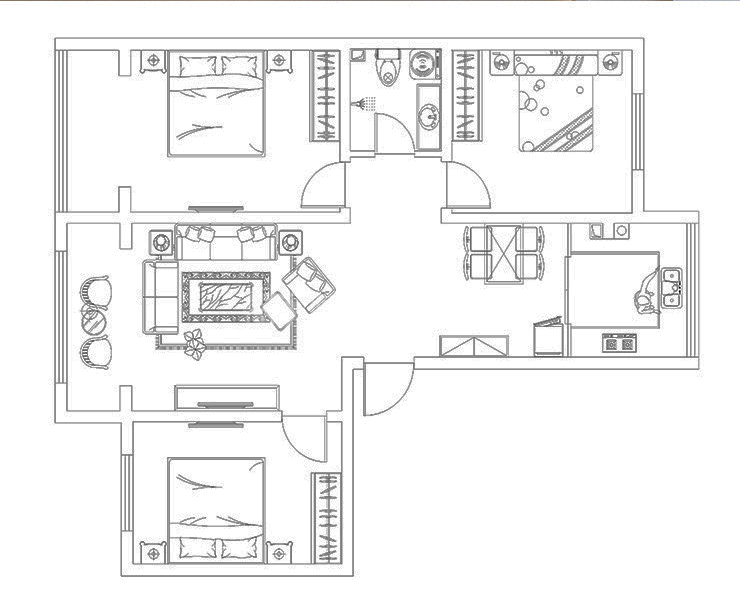
户型图
第1张
  • 案例详情

恒润雅筑-104平-现代风格-客厅2.jpg 恒润雅筑-104平-现代风格-客厅.jpg 恒润雅筑-104平-现代风格-客厅4.jpg 恒润雅筑-104平-现代风格-客厅3.jpg

客户喜欢起居室有的不只是美观大方,更多的是个性化设计,带给业主不尽的舒适触感,给人一种回到家就能把室外琐碎的外界影响都给抛制脑外,包括电视背景墙的硬包效果把侧面卧室门巧妙的包含在整体背景效果里面。

恒润雅筑-104平-现代风格-餐厅.jpg 恒润雅筑-104平-现代风格-餐厅2.jpg

现代餐厅有着现代奢华的设计效果。在以对应餐厅的吊棚基础之上穿插倒角镜片造型,给餐厅带来唯美大方及放大空间感的设计效果。

恒润雅筑-104平-现代风格-卧室.jpg

现代风格的卧室有着奢华富有温馨感,床头背景采用了软包及烤漆玻璃做为装饰,搭配整体墙面咖色壁纸,让整体效果更加富有协调性。

恒润雅筑-104平-现代风格-卫生间.jpg

卫生间墙地砖选择米黄色系列的砖给人带来的是一种温馨,浴屏的独特设计分开了空间的干湿分离,定制的洗漱柜不会让洗手间出现任何的卫生死角。

恒润雅筑-104平-现代风格-厨房.jpg

厨房以蓝色烤漆面为主的橱柜设计,正面墙选用的深色抛釉砖,再加上米色瓷砖作为搭配,能够让厨房更加的有质感,把现代厨房发挥的淋漓尽致。

恒润雅筑-104平-现代风格-过廊.jpg 恒润雅筑-104平-现代风格-户型图.jpg

案例设计师

林凤装饰设计师

设计师:林凤装饰设计师

从业时间:11年

设计理念:设计来源于生活。

预约设计师

算算你家装修多少钱

报名即享丰厚赠品,享半价装修

免费报价
咨询热线:400-656-9909
20190221103704574636.jpg

精品设计案例

20180612134930523248.jpg 服务号二维码.jpg