立即预约 立即预约
免费定制整装家居

免费定制整装家居

一站置家 全程无忧 一省到底
hide.png

当前位置: 首页 > 装修案例效果图 > 哥本哈根

哥本哈根 90平 新中式风格效果图

收藏
案例风格 新中式 案例户型 二居 案例面积 90平米
楼盘名称 哥本哈根 设计师 林凤装饰设计师 案例类型 旧房改造

设计理念:本案新中式体现的是现代和中式的文化碰撞,本案大胆运用了蓝绿色的壁布,地王黄色的抱枕相对呼应,旧木色的家具沉稳大气,天花的线条凸显整体的现代感

客厅
第1张
第2张
第3张
第4张
餐厅
第1张
第2张
门厅
第1张
过廊
第1张
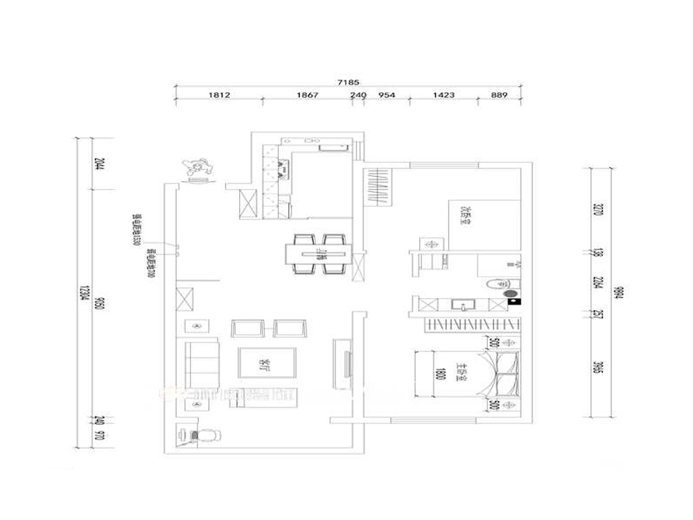
户型图
第1张
  • 案例详情

刘磊哥本哈根90平-新中式-1客厅.jpg 刘磊哥本哈根90平-新中式-客厅.jpg 刘磊哥本哈根90平-新中式-客厅2.jpg 刘磊哥本哈根90平-新中式-客厅3.jpg

客厅的沙发采用的是围合式的款式,电视背景墙考虑到业主自身美术功底所以采用石膏板留白,后期自己绘制水墨画 另外用蓝绿色的壁布作为背景主色,让整体看起来更有档次和神秘感。

刘磊哥本哈根90平-新中式-餐厅.jpg 刘磊哥本哈根90平-新中式-餐厅2.jpg

餐桌餐椅布艺用冷暖颜色对比,墙面挂上三个装饰性青花瓷盘,吊灯选用中式吊灯。

玄关.jpg 刘磊哥本哈根90平-新中式-过廊.jpg 刘磊哥本哈根90平-新中式-平面图.jpg

案例设计师

林凤装饰设计师

设计师:林凤装饰设计师

从业时间:8年

设计理念:设计源于生活 体悟生活的精彩完善生活的设计

预约设计师

算算你家装修多少钱

报名即享丰厚赠品,品质装修

免费报价
咨询热线:400-656-9909
20190221103704574636.jpg

精品设计案例

20180612134930523248.jpg 服务号二维码.jpg