立即预约 立即预约
免费定制整装家居

免费定制整装家居

一站置家 全程无忧 一省到底
hide.png

当前位置: 首页 > 装修案例效果图 > 华润橡树湾

华润橡树湾 94平 现代简约风格效果图

收藏
案例风格 现代简约 案例户型 二居 案例面积 94平米
楼盘名称 华润橡树湾 设计师 林凤装饰设计师 案例类型 改善性住宅

设计理念:本案是以现代风格为主的设计,主要是餐厅及厨房的衔接部分是业主比较头疼的问题,改造后的方案整体都要照比原有的户型协调了许多,缔造出一个令人心弛神往的写意空间。。

客厅
第1张
第2张
餐厅
第1张
第2张
卧室
第1张
卫生间
第1张
厨房
第1张
门厅
第1张
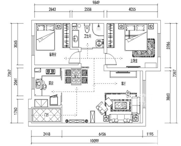
户型图
第1张
  • 案例详情

华润橡树湾-94平-现代风格-客厅.jpg 华润橡树湾-94平-现代风格-客厅2.jpg

客厅的设计大多数是采用的布艺沙发及硬包背景墙的整体搭配,创造性的表达空间的品质和精神,并解决客户的简洁大方而又不失美感需求

华润橡树湾-94平-现代风格-餐厅1.jpg 华润橡树湾-94平-现代风格-餐厅3.jpg

经过设计师的改后餐厅能使家庭成员品尝佳肴、接待亲朋好友,营造轻松愉快、亲密无间的就餐气氛

华润橡树湾-94平-现代风格-卧室.jpg

我们通常所说的设计是根据空间的功能和个人的爱好来强化空间的作用.卧室主要提供我们休息的地方,我们的设计就要根据这个功能为基础,颜色上以暖色为主,但不要太鲜亮,而且要封闭,物品摆放上要稍紧凑一点,不要让空间显得太开敝.温暖,封闭的空间让人更容易产生睡意,性情更平静.鲜亮开敝的空间让人有兴奋,不安全的感觉

华润橡树湾-94平-现代风格-卫生间.jpg

卫生间墙地砖选择米黄色系列的砖给人带来的是一种温馨,浴屏的独特设计分开了空间的干湿分离,定制的洗漱柜不会让洗手间出现任何的卫生死角。。

华润橡树湾-94平-现代风格-厨房.jpg

厨房的设计是整体空间的亮点,因为厨房在没有经过设计师改造之前非常的狭小而且摆放也不是特别合理,经过改造后的厨房把整个餐厅及厨房相连,在案例的整体效果当中不愧是一个亮点。

华润橡树湾-94平-现代风格-玄关1.jpg 华润橡树湾-94平-现代风格-平面图.jpg

案例设计师

林凤装饰设计师

设计师:林凤装饰设计师

从业时间:6年

设计理念:草在结它的种子,风在摇它的叶子,我们站着,不说话,就十分美好

预约设计师

算算你家装修多少钱

报名即享丰厚赠品,享半价装修

免费报价
咨询热线:400-656-9909
20190221103704574636.jpg

精品设计案例

20180612134930523248.jpg 服务号二维码.jpg