立即预约 立即预约
免费定制整装家居

免费定制整装家居

一站置家 全程无忧 一省到底
hide.png

当前位置: 首页 > 装修案例效果图 > 龙湖唐宁one

龙湖唐宁one 148平 现代简约风格效果图

收藏
案例风格 现代简约 案例户型 二居 案例面积 148平米
楼盘名称 龙湖唐宁one 设计师 林凤设计师 案例类型 改善性住宅

设计理念:本案位于沈阳沈北地区,环境优美,空气清新,非常适合养生,根据业主的要求及设计师对业主的了解,打造一个欧式风格的家居环境是非常适合这个房子的主人的。

客厅
第1张
第2张
第3张
餐厅
第1张
卧室
第1张
卫生间
第1张
门厅
第1张
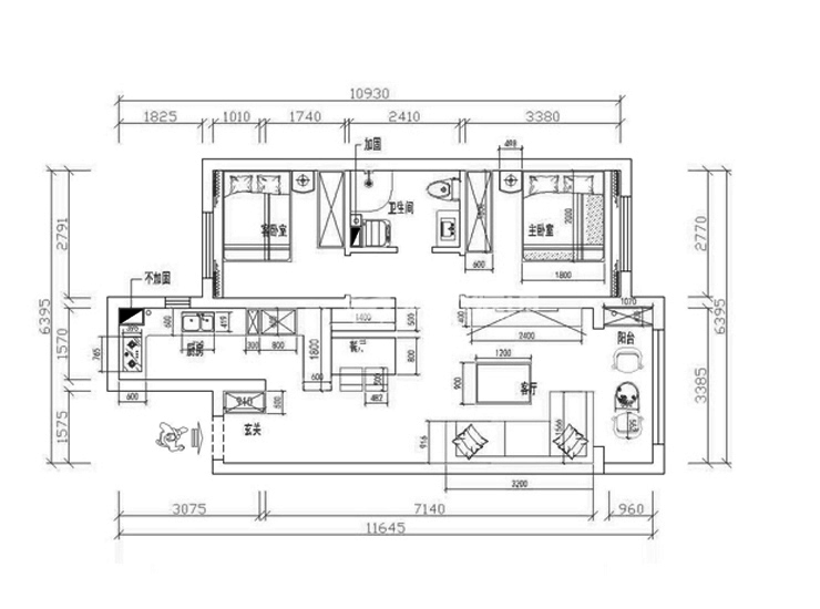
户型图
第1张
  • 案例详情

龙湖唐宁one--148平简约风格--首图.jpg 龙湖唐宁one--148平简约风格--客厅.jpg 龙湖唐宁one--148平简约风格--客厅2.jpg

在本案客厅,所有墙面铺贴浅色欧式花纹壁纸,稍带淡黄色的纹理,使整体房间有一种温馨的感觉。客厅天花以直线造型棚为基础,辅以简洁的欧式石膏线,层次感更加分明。除了主灯源的设置还增设了四周的筒灯及灯带来作为辅助光源,提高房间亮度。

龙湖唐宁one--148平简约风格--餐厅.jpg

餐厅在整套户型中有独立的区域,欧式花纹餐椅的运用,为整个空间增添了颜色,使其不单调。餐厅背景设计为镜面造型,增加空间感的同时,在风水上也有催财的效果,棚顶天花运用方形直线吊顶,从天花中区分出了客厅和餐厅的空间,独立性更强。

龙湖唐宁one--148平简约风格--卧室.jpg

主卧室以暖色为基础色调,在家具的选用上也运用浅颜色,但是在一些配饰上采用了耦色,给人焕然一新的感觉。

龙湖唐宁one--148平简约风格--卫生间.jpg 龙湖唐宁one--148平简约风格--次卧门厅.jpg 龙湖唐宁one--148平简约风格--平面图.jpg

案例设计师

林凤设计师

设计师:林凤设计师

从业时间:7年

设计理念:成就空间和谐,让设计物有所值,让细节缔造完美

预约设计师

算算你家装修多少钱

报名即享丰厚赠品,享半价装修

免费报价
咨询热线:400-656-9909
20190221103704574636.jpg

精品设计案例

20180612134930523248.jpg 服务号二维码.jpg