立即预约 立即预约
免费定制整装家居

免费定制整装家居

一站置家 全程无忧 一省到底
hide.png

当前位置: 首页 > 装修案例效果图 > 春江花月

春江花月 110平 现代简约风格效果图

收藏
案例风格 现代简约 案例户型 三居 案例面积 110平米
楼盘名称 春江花月 设计师 林凤设计师 案例类型 婚房

设计理念:业主是一个有为青年,还有一个可爱的宝宝。对生活品质有一定的追求,同时对家的理念有自己独特想法。

客厅
第1张
第2张
第3张
第4张
餐厅
第1张
卫生间
第1张
第2张
厨房
第1张
儿童房
第1张
第2张
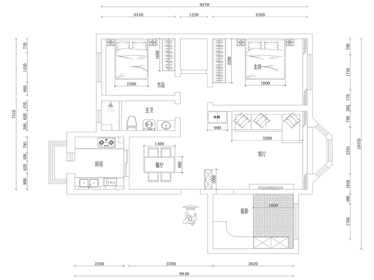
户型图
第1张
  • 案例详情

春江花月-110平-现代简约风格-客厅1.jpg 春江花月-110平-现代简约风格-客厅2.jpg 春江花月-110平-现代简约风格-客厅3.jpg 春江花月-110平-现代简约风格-客厅4.jpg

由于户型和面积的限制,现在的房子设计格局的时候一般都是开放性的。进门就能看到玄关、客厅、餐厅的全貌。现代简约风格设计要求内外通透,但并不等于简单的开敞。反而是更高的要求,在空间平面设计中追求不受承重墙的限制自由。所以在设计现代简约的时候,很多时候都会考虑到墙面、地面、顶棚等的协调性。在有限的空间内将玄关、餐厅、客厅等门面设计得落落大方,风格一致,布局精巧,还要体现主人的品味和追求绝对不是一件简单的事情。

春江花月-110平-现代简约风格-餐厅.jpg

简约风格色彩设计也是非常重要的,一般都是通过色彩之间来突出简约。而且色彩的选择和物品会起到一定的搭配作用,所以在选择物品或者选择色彩的时候一定要搭配好。

春江花月-110平-现代简约风格-卫生间2.jpg 春江花月-110平-现代简约风格-卫生间1.jpg

卫生间的设计,不需要华丽的灯饰和地砖,配备基本的卫浴用品即可。

春江花月-110平-现代简约风格-厨房.jpg

厨房一般摆设的家具较多,看起来杂乱不整洁。但是简洁的家具也能让空间更为开阔,抛弃复杂的大件家用电器,一切以适用和适宜为主。

春江花月-110平-现代简约风格-儿童房1.jpg 春江花月-110平-现代简约风格-儿童房2.jpg

小的屋子就不要为了显得阔绰而购买体积比较大的物品,应该购买生活必须的东西,如果能不占面积,可以折叠,功能多样化那就再好不过了。

春江花月-110平-现代简约风格-平面图.jpg

案例设计师

林凤设计师

设计师:林凤设计师

从业时间:6年

设计理念:化繁为简,以简驭繁。

预约设计师

算算你家装修多少钱

报名即享丰厚赠品,享半价装修

免费报价
咨询热线:400-656-9909
20190221103704574636.jpg

精品设计案例

20180612134930523248.jpg 服务号二维码.jpg