立即预约
免费定制整装家居
一站置家 全程无忧 一省到底
设计理念:本案主要以深色系为主,因为业主家全部都是落地窗,采光非常的好,所以,无论地板瓷砖墙面颜色,都选择深色,不求装修的多么富丽堂皇,追求一种低调的奢华,有质感的生活。
案例详情
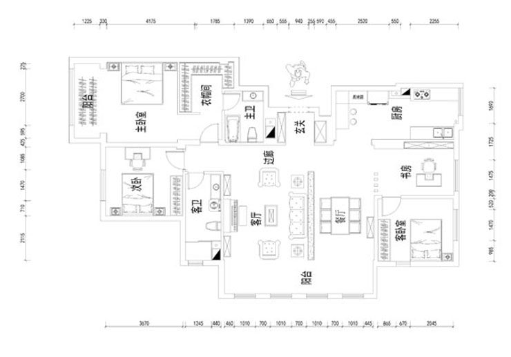
客厅开间很大,7.2米宽,客餐厅一体,中间用直线棚配上筒灯,正下方对应的吧台,也可以当做沙发的背景倚靠,把客厅和餐厅分隔开,又可以起到装饰作用,客厅业主不喜欢有主灯,这样就多放一些筒灯,达到合适的亮度以后,又不会很乱,显得简洁大方。业主家特殊的地方在于,不放电视机,为了孩子的健康成长,放上一个钢琴,左右两边配上搭配的装饰架,背景墙加以深色乳胶漆,呈现一个跳色的亮点。
餐厅背景墙同客厅一样,也有深色乳胶漆跳色,90✖180厘米尺径的大餐桌,虽然客餐厅一体,但餐厅还是选择了挂一个主灯,两边有对比。
主卧重新规划了衣帽间的位置,利用好床尾对面的墙,巧妙的去掉了一个异形的承重墙,使卧室内显得很规整,四方四正,阳台在原户型基础上,外扩出去,增加卧室采光同时,还可以作为晾衣区。
客卫属于典型的长条形,通过排尺,一个90厘米宽的大洗面台,120厘米宽的洗衣台,淋浴区正靠窗口,方便通风,各区域尺寸都很恰当。
原本是封闭式书房,经过一番拆改以后,书房完全开敞,同时在客卧门口竖上四根原木色柱子,起到隔断的作用,同时也很直观的突出深木色。
精品设计案例
设计说明:
三室两厅一厨两卫,高层整体采用美式风格,色调以深色为主,体现美式的居家感和温馨感。
设计说明:
本案业主为年轻时尚小两口,所以我们考虑到未来想要给未来宝宝一个温馨舒适的一个房间,所以本案整体采用现代风格的手法,运用颜色,来打造整体空间的设计感及时尚感
设计说明:
本案以北欧风格为主题的设计,北欧风格能以现代、简洁、自然的特点俘获人心,所营造出来的生活氛围会让人倍感舒适与自在。
设计说明:
客户是一名成功人士,对于家的执念就是简单干净,客户衣服比较多,所以把每个空间都做了大衣柜,并且融入到设计里