立即预约 立即预约
免费定制整装家居

免费定制整装家居

一站置家 全程无忧 一省到底
hide.png

当前位置: 首页 > 装修案例效果图 > 国瑞城

国瑞城 115平 欧式风格效果图

收藏
案例风格 欧式 案例户型 三居 案例面积 115平米
楼盘名称 国瑞城 设计师 林凤装饰设计师 案例类型 改善性住宅

设计理念:此设计以主要以现代简约风格为基础,辅以北欧风格家具的设计。整体多为木色家具和冷色系彩漆来体现个性的居家效果,使业主在忙碌的工作中感受到一个专属的个性舒适空间。

客厅
第1张
第2张
第3张
第4张
餐厅
第1张
卧室
第1张
卫生间
第1张
过廊
第1张
第2张
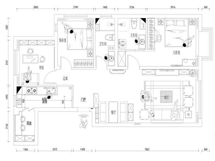
户型图
第1张
  • 案例详情

国瑞城-115平-简欧风格-客厅1.jpg 国瑞城-115平-简欧风格-客厅2.jpg 国瑞城-115平-简欧风格-客厅3.jpg 国瑞城-115平-简欧风格-首图.jpg

客厅区域非常方正,区域划分分明,主空间为了使整体效果更加具有层次感,所以棚面做了部分造型进行划分区域以及过梁弱化。墙面为冷峻色诸位主色调,厚重感十足但不失清爽,配合柔和的灯光,给人带来一种童话情怀。深木色家具配现代风格常见的线条,给人一种即时尚又温馨的独特感觉。

国瑞城-115平-简欧风格-餐厅.jpg 国瑞城-115平-简欧风格-卧室.jpg

卧室空间不是很大,棚面以简洁的石膏线为主,床头以紫罗兰色系使空间更加个性分明也是整个空间的亮点所在,与白色棚面作为呼应,有主有次。原有的飘窗砸掉,作为储物柜及小休闲区,增加了储物功能,也能让业主在闲暇时坐在窗边看看书。

国瑞城-115平-简欧风格-卫生间.jpg

卫生间主要以蓝色来体现,配以白色的瓷砖增加一些灵动性。在淋浴区深色的花片作为凸显空间主要功能的划分区域。

国瑞城-115平-简欧风格-过廊1.jpg 国瑞城-115平-简欧风格-过廊2.jpg 国瑞城-115平-简欧风格-平面.jpg

案例设计师

林凤装饰设计师

设计师:林凤装饰设计师

从业时间:12年

设计理念:设计源于生活,细节成就品质

预约设计师

算算你家装修多少钱

报名即享丰厚赠品,享半价装修

免费报价
咨询热线:400-656-9909
20190221103704574636.jpg

精品设计案例

20180612134930523248.jpg 服务号二维码.jpg