立即预约 立即预约
免费定制整装家居

免费定制整装家居

一站置家 全程无忧 一省到底
hide.png

当前位置: 首页 > 装修案例效果图 > 藏珑白塔湾里

藏珑白塔湾里 88平 现代简约风格效果图

收藏
案例风格 现代简约 案例户型 二居 案例面积 88平米
楼盘名称 藏珑白塔湾里 设计师 林凤装饰设计师 案例类型 婚房

设计理念:本案以现代简约风格辅以北欧风格为主的设计。以木色家具和冷色系彩漆来体现个性的居家效果,使业主在忙碌的工作中感受到一个专属的个性舒适空间。

  • 案例详情

藏珑白塔湾里-88平-现代风格-客厅 (1).jpg 藏珑白塔湾里-88平-现代风格-客厅 (2).jpg 藏珑白塔湾里-88平-现代风格-客厅 (3).jpg 藏珑白塔湾里-88平-现代风格-客厅 (5).jpg 藏珑白塔湾里-88平-现代风格-客厅 (4).jpg 藏珑白塔湾里-88平-现代风格-客厅 (6).jpg 藏珑白塔湾里-88平-现代风格-客厅 (7).jpg 藏珑白塔湾里-88平-现代风格-客厅.jpg

整个客厅经过拆改衔接有致,区域划分分明,方正的空间为了使整体效果更加具有层次感,所以棚面做了部分造型进行划分区域。墙面为冷峻色诸位主色调,厚重感十足但不失清爽,配合柔和的灯光,给人带来一种童话情怀。木色家具配现代风格常见的线条,给人一种即时尚又温馨的独特感觉。

藏珑白塔湾里-88平-现代风格-餐厅 (1).jpg 藏珑白塔湾里-88平-现代风格-餐厅 (2).jpg 藏珑白塔湾里-88平-现代风格-卧室.jpg

卧室空间不是很大,棚面以简洁的石膏线为主,床头以卡其色调色漆配以个性的方框照片墙为整个空间的亮点,与白色棚面作为呼应,有主有次。原有的飘窗砸掉,作为储物柜及小休闲区,增加了储物功能,也能让业主在闲暇时坐在窗边看看书。

藏珑白塔湾里-88平-现代风格-卫生间.jpg

卫生间主要以暖色调来体现,米色的瓷砖增加一些灵动性。在淋浴区深色的墙砖作为凸显空间主要功能的划分区域。

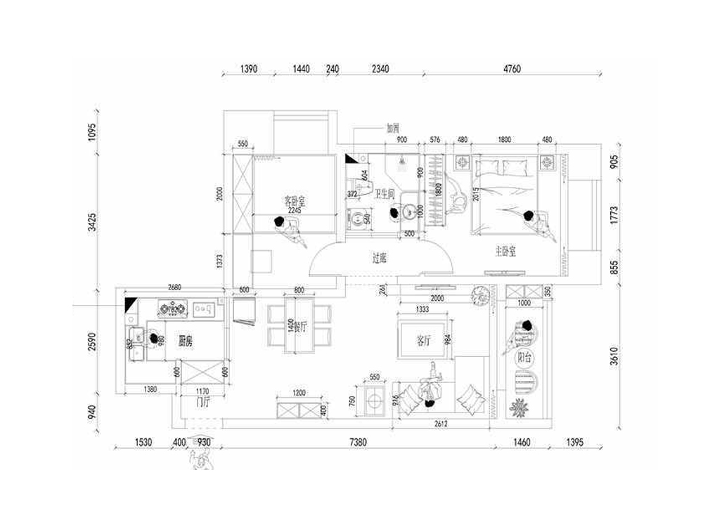
藏珑白塔湾里-88平-现代风格-户型图.jpg

案例设计师

林凤装饰设计师

设计师:林凤装饰设计师

从业时间:12年

设计理念:设计源于生活,细节成就品质

预约设计师

算算你家装修多少钱

报名即享丰厚赠品,享半价装修

免费报价
咨询热线:400-656-9909
20190221103704574636.jpg

精品设计案例

20180612134930523248.jpg 服务号二维码.jpg