立即预约 立即预约
免费定制整装家居

免费定制整装家居

一站置家 全程无忧 一省到底
hide.png

当前位置: 首页 > 装修案例效果图 > 金辉湖畔里

金辉湖畔里 120平 现代简约风格效果图

收藏
案例风格 现代简约 案例户型 三居 案例面积 120平米
楼盘名称 金辉湖畔里 设计师 林凤装饰设计师 案例类型 儿童房

设计理念:本案以现代风格为主的设计,运用了实木造型口及硬包结构来围绕着整体装修风格,业主偏向于现代奢华感觉,已舒适家具和现代装修相结合,以唯美、成熟、稳重为前提的设计方案。

客厅
第1张
第2张
第3张
餐厅
第1张
卧室
第1张
卫生间
第1张
厨房
第1张
门厅
第1张
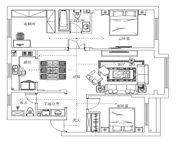
户型图
第1张
  • 案例详情

金辉湖畔里-120平-现代风格-客厅3.jpg 金辉湖畔里-120平-现代风格-客厅2.jpg 金辉湖畔里-120平-现代风格-客厅1.jpg

客户喜欢起居室有的不只是美观大方,更多的是个性化设计,带给业主不尽的舒适触感,给人一种回到家就能把室外琐碎的外界影响都给抛制脑外,包括电视背景墙的硬包效果把侧面卧室门巧妙的包含在整体背景效果里面。

金辉湖畔里-120平-现代风格-餐厅.jpg

现代餐厅有着现代奢华的设计效果。但是餐厅有个柱子、按照原来的房型在业主眼里可能是个缺点,而我在本案把缺点隐藏、运用了满面墙倒角镜片和壁灯的完美搭配,给餐厅带来唯美大方的设计效果。

金辉湖畔里-120平-现代风格-卧室.jpg

现代风格的卧室有着奢华富有温馨感,床头背景采用了硬包及玻璃马赛克做为装饰,整体墙面壁纸以及卧室和卫生间墙面通透玻璃的设计感觉,让整体更加富有协调性。

金辉湖畔里-120平-现代风格-卫生间.jpg

客卫生间采用了干湿分离的设计效果,在本案设计师把洗衣机融入手盆柜下方,定制整体理石台面镶嵌式造型让卫生间的干湿分离更富有设计感。

金辉湖畔里-120平-现代风格-厨房.jpg 金辉湖畔里-120平-现代风格-玄关.jpg 金辉湖畔里-120平-现代风格-平面图.jpg

案例设计师

林凤装饰设计师

设计师:林凤装饰设计师

从业时间:6年

设计理念:设计源于生活,设计源于文化,设计源于本质。

预约设计师

算算你家装修多少钱

报名即享丰厚赠品,品质装修

免费报价
咨询热线:400-656-9909
20190221103704574636.jpg

精品设计案例

20180612134930523248.jpg 服务号二维码.jpg